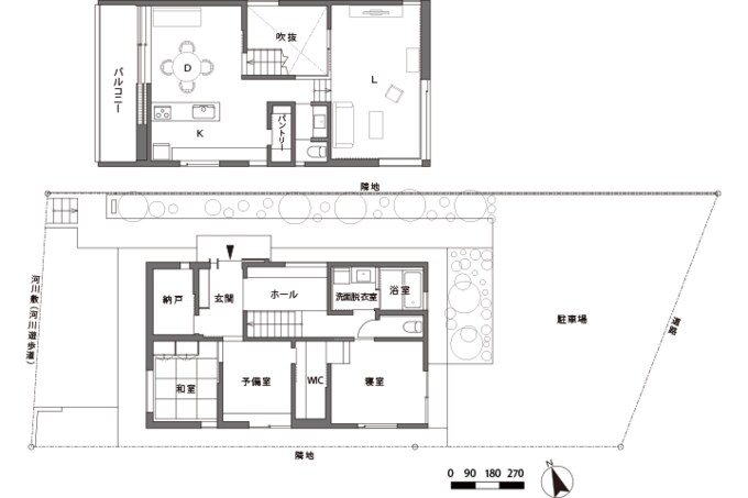
東京郊外に建つこの家に暮らすのは、夫婦と小学生の長女の3人家族。1階に寝室、浴室、納戸などのプライベート空間をまとめ、眺めのよい2階にLDKを配置しました。LDKは吹き抜けの階段室を挟んで、食の場とくつろぎの場を明確に分ける構成になっています。西側に河川敷、東側に山を望むことができる緑豊かな環境を生かしたプランの住宅を紹介します。
すべての画像を見る(全12枚)別荘のようなリビングと表情豊かなダイニング
こちらは建築家・内田雄介さんの自邸。くつろぎの場である東側のリビングは、山側の緑に対して2面にピクチャーウインドウを設けました。心身ともにリラックスできるように演出されています。加えて、梁表しの天井があたたかみをプラス。「ここは別荘のような雰囲気が楽しめる空間です」と内田さん。
一方、西側のダイニングとキッチンでは天気や気分に合わせて、窓を開け放って木々の緑を眺めたり、障子越しに差し込むやわらかな光を楽しんだりするのだとか。
ダイニングキッチンは、そんな多彩な表情をもたらしてくれる場所。
内田さんは「ダイニングにいる時間がいちばん長い」そうです。
ダイニングに隣接した、いろいろな使い方ができる広いバルコニーも大きな魅力。ここはセカンドリビングとして食事やお茶を楽しんだり、夏は夕涼みなどもできるスペースです。
こだわりの家具も紹介しましょう。ダイニングテーブルは長野県の浅村家具製作所でオーダーしたもの。椅子はYチェアやUUチェアなど、デザインが異なる椅子4脚を組み合わせています。
【この住まいのデータ】
▼家族構成
40代夫婦+子ども1人
▼家を建てた理由
夫の実家の隣地が売りに出されたのを機に新築を計画
▼住宅の面積やコスト
131.58㎡(4LDK)、コストは秘密
四季折々の光を暮らしの中に取り込む
内田邸では季節ごとに変わる光を家のどこにいても感じられるようにと、大小様々な窓を設けました。吹き抜けの階段では、高窓やベンチ際に低い窓などを設けて、穏やかな自然光を取り入れています。ここは絵を飾ったり、花を生けたりすることで、ギャラリーのような雰囲気に。
東西をつなぐ廊下の上の天窓からは、やさしい光が降り注ぎます。
この天窓からの光は、2階の床を一部ガラスにすることで1階の予備室にまで届きます。現在は内田さんの書斎ですが、どんな用途にも使えるスペースです。
ちなみに正面に見えるにじり口のような木製ドアはウォークインクロゼットで、寝室側からも出入りが可能。
1階の寝室には掃き出し窓のほか、ハイサイドライトを設けて山側の緑と光を取り込みました。
存在感のある大きな吹き抜けが東西を分け、上下階をつなぐ
玄関の土間を抜けて階段を上ると、正面がダイニングキッチン。2階は玄関の吹き抜けを挟むことで、食(ダイニングキッチン)とくつろぎ(リビング)の場が分けられているのです。
こちらは川側から見た外観。黒をベースにした外観は、周囲の緑と互いに引き立て合っています。シンプルだけれど、人目を引くデザイン。
「常に緑を目にすることができる暮らしは、すごく恵まれていると実感します。日常だけど、目にするたびに、いい風景だな、と思えるんです」と妻。さらに、「自慢できるわが家ですかね」と笑顔で話してくれました。
間取り
設計/内田雄介設計室 撮影/川辺明伸











