土地選びから、ますいいリビングカンパニーに依頼して家づくりを始めたYさん夫妻。 そのかいあって、理想とする暮らしを実現できる住まいが完成!その魅力を紹介します。
すべての画像を見る(全19枚)薪ストーブが主役のLDKは、カラ松のフローリングで自然の温もりをプラス。キッチンの前には、はき出し窓を取りつけて、庭に出入りしやすい工夫を施しています。ほかにも、吹き抜けのスリット窓や地窓を設け、庭と室内との心理的な距離を縮めます。
Yさんの家(2021年) 埼玉県 家族構成/夫40代 妻40代 長女未就学児 長男乳児
設計・施工/ますいいリビングカンパニー
建築家がスケッチした家は、感性豊かで住み心地も快適
「家は建てて終わりではなく、その後も手をかけるもの」と考えていたというYさん夫妻。家づくりにあたり、同じ考えを持つ、ますいいリビングカンパニーに土地選びから相談しました。
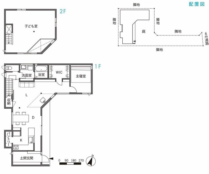
Y邸が建つこの土地は、周囲に家があるものの視界が開けた旗竿敷地。この土地を見て、代表で建築家の増井真也さんは「庭と建物がつながり、自然を大切にした暮らしができる住まいを」と思ったそう。その場でYさんの妻に希望を聞きながらスケッチし、ほぼそのままに完成したのがY邸です。
庭に向かって開かれたL字型の建物で、リビングを軸にダイニングキッチンや寝室が広がり、家のどこにいても庭に意識が向けられる暮らしが楽しめます。
地窓や縦長のスリット窓など、形や配置を工夫
煙突がそびえる棟を軸に、平屋がのびやかに広がる外観。軒を低く、深く取ることで、軒下が縁側風に使えるようになり、薪割りの場としても活用しているそうです。
セルフビルドや工夫が凝らされたプランニングで住み心地◎
家づくりを振り返って夫は、「壁を塗るなど、家づくりに参加できたのがいい記念に。この経験を家のメンテナンスに生かしたい。でもまずは、春に向けて庭づくりに専念ですね」と話します。
一方、妻は「庭で採れた野菜を料理して、家族で食べるのが今から楽しみ。それに、キッチンからは庭で遊ぶ子どもが見守れ、リビングの吹き抜けからは家族の声が伝わるので安心です」と、子育てのしやすさにも納得の様子です。
冬の団らん場所は、リビングの薪ストーブの前が定位置に。造りつけの棚には、本やDVD と一緒にお気に入りのアイテムを並べ、リビングのインテリアに活用しています。棚板には厚みのあるベイ松を使用。
階段下は収納に。壁面には、DVDプレイヤーの格納スペースを造作し、テレビボードとして利用しています。
上下階に家族がいても、吹き抜けを介して顔を見ながら話せます。
DKの天井はリビングより高さを抑え、落ち着いた雰囲気に。食器棚やダイニングテーブルは大工工事によるオーダーメイドです。手前の柱に記されたのは背比べの跡。子どもの成長が、家族や家の思い出になります。
調理や配膳で活躍する木製ワークトップは、キズがつきにくいクリ材を採用。
可動棚を配したパントリーはイスを置ける広さがあり、妻は「私の部屋として使えそう」と、使い勝手と居心地のよさを実感しています。
壁のタイルは妻のセルフビルド
庭を眺めながら調理できるL型キッチン。「娘と一緒に料理を楽しみたい」という妻の願いから、ゆったり使える広さを確保しています。
しまうものの位置や高さを決めて造作したオープン棚が、使い勝手を高めます。
夫がDIYなどの作業ができるように、広い玄関は床を土間仕上げに。
土間玄関とLDKをつなぐリビングドアやキッチン前の壁には、夫が黒板塗料で仕上げたお絵描きコーナーが。家族の予定も書けて便利だそうです。
2階の子ども部屋は、あらかじめ窓やコンセントなどを2か所に設置。将来的には2部屋に分ける予定です。
差し色でアクセントを!
夫の遊び心から、適所にアクセントカラーを配して空間にメリハリを。寝室の壁には落ち着いた印象の赤茶系を採用しています。
鮮やかなブルーを天井に配色した洗面室。
天井のグリーンに合わせて、壁の一面にも薄い緑色を採用したトイレ。
Checkpoint
セルフビルドの体験が、家への愛着を深めます
- Yさん夫妻がますいいリビングカンパニーに決めた理由のひとつが、建主も施工に参加できる点。リビングのアクセントウォールの塗装に、夫が挑戦しました。
-
「モルタルが重くてコテ塗りは大変でした。終わったときには解放感がすごかった」と苦笑い。壁に残るコテ跡を見て、当時を思い出すこともあるそうです。
間取り図
Data
敷地面積/272.00㎡(82.42坪)
延床面積/107.88㎡(32.69坪)
1階/78.07㎡(23.66坪)
2階/29.81㎡(9.03坪)
用途地域/第1種中高層住居専用地域
建ぺい率/60%
容積率/200%
構造/木造軸組工法
本体工事費/2400万円
竣工/2020年5月
設備
厨房機器/ノーリツ、富士工業
衛生機器/TOTO、LIXIL、パナソニック
窓・サッシ/LIXIL
工務店プロフィール
建主の夢に寄り添う、建築家集団の家づくり
ますいいリビングカンパニーは、工務店機能を持つ設計事務所として、住宅を中心に新築・リフォームを手掛けています。
設計力や提案力に定評があり、自社大工による施工力の高さも魅力。クリや桜、オニグルミなどの国産広葉樹を丸太で安く購入し、質の高い家づくりに生かしているのも特徴です。
化学物質によるアレルギーに配慮した完全自然素材や、セルフビルドを取り入れた参加型の楽しい家づくりを得意とします。
●社名:ますいいリビングカンパニー
●ひと言:建主参加の楽しい家づくりがモットーです
●建築エリア:関東一円
●住所:〒332-0032 埼玉県川口市中青木3-2-5
●電話:048・254・8021 町田分室 〒195-0062東京都町田市大蔵町494-5 042・737・3157 高崎分室 〒379-2146群馬県前橋市公田町644-3 027・212・6169
●年間建築棟数:新築15棟、リフォーム10棟
●設立:1995年
●代表:増井真也
早稲田大学理工学部建築学科卒業後、大手ゼネコン勤務を経て2001年、ますいいリビングカンパニーに参加。
建築家・石山修武氏と協働してつくられた本社屋。枕木の階段は増井社長がセルフビルドしたもの。


















