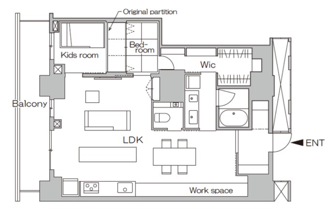
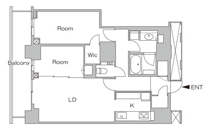
【マンションリノベ事例】廊下をなくしてLDKを拡張。幅5mのカウンターをつくり家族共有のワークスペースに 記事に戻る スクロールで次の画像 (画像 1/14) この記事を読む (画像 2/14) この記事を読む (画像 3/14) この記事を読む (画像 4/14) この記事を読む (画像 5/14) この記事を読む (画像 6/14) この記事を読む (画像 7/14) この記事を読む (画像 8/14) この記事を読む (画像 9/14) この記事を読む (画像 10/14) この記事を読む (画像 11/14) この記事を読む (画像 12/14) この記事を読む (画像 13/14) この記事を読む (画像 14/14) この記事を読む