キッチンまでつながる幅5mのカウンターを設置し、家族共用のワークスペースとしたオープンな間取り。黒をベースにした内装やキッチンカウンターも印象的です。タワーマンションならではの眺望を楽しみたい、生活動線を改善したい、という思いから10年住んだ家をリノベしました。「驚くほど快適になった」というNさんの住まいを見ていきましょう。
すべての画像を見る(全14枚)目次:
眺めがよく機能的なオープンキッチン廊下を撤去してLDKを広く。幅5mのカウンターを家族共有のワークスペースにコンパクトだけど機能的な個室動線を考慮して、水まわりには回遊性を間取り(リノベーション前後)眺めがよく機能的なオープンキッチン
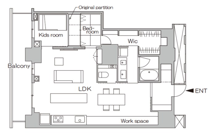
2室の壁を取り払って広々としたLDKを生み出し、眺めのいい場所にキッチンを移動。黒のタイルをベースに、全体を大人モダンな雰囲気に仕上げました。作業台にもなるワイドなカウンターを設けた2列配置で、長女と一緒の調理も快適に。食事の支度も余裕を持ってできるるスペースがあります。
キッチンからはリビングが見渡せます。
「食事の準備をしながら家族と会話ができ、テレビも見ることができて快適」(妻)
カウンター下の収納や新設した大容量のウォークインクロゼットのおかげで片づけやすくなりました。スッキリした空間を保てるように。
【この住まいのデータ】
▼家族構成
夫52歳、妻48歳、長女9歳
▼リノベを選んだ理由
10年住んでみて、間取りや動線などを改善したいと感じていた。閉鎖的で使いづらいキッチンもなんとかしたかった。
▼住宅の面積やコスト
専有面積 70.16㎡
廊下を撤去してLDKを広く。幅5mのカウンターを家族共有のワークスペースに
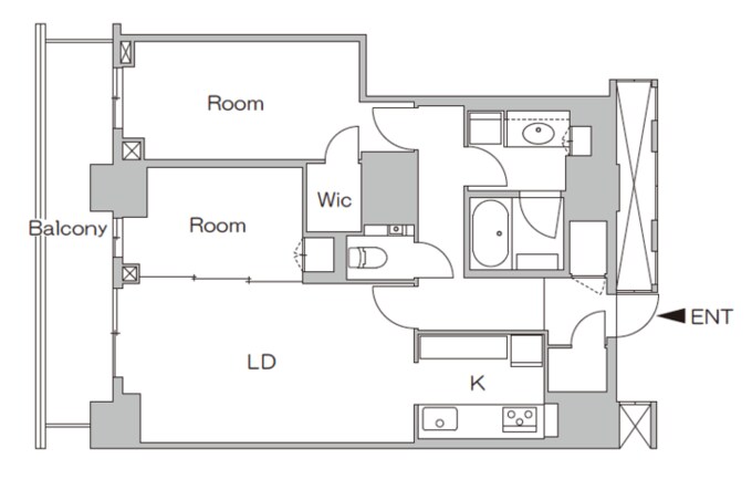
「リノベーション前、常々もったいないと感じていたのが廊下。この空間をLDKに取り込んで、もっと広くしたいと思っていました」と夫。その要望を叶えるべく、思い切って廊下をなくし、LDKを拡張。玄関にある引き戸を開けると、LDKに直接つながります。
ダイニングからキッチン、さらに外まで一気に視線が抜けていき、開放感たっぷり。
壁側にはキッチンまでつながる幅5mのカウンターを設置しました。家族共用のワークスペースとし、下部は大容量の収納に。「壁に吊戸棚をつける案もありましたが、なくて正解。空間が広く感じられます」と妻は満足そう。
コンパクトだけど機能的な個室
リビングからはふたつの個室にアクセスできます。ひとつは長女の個室。組み立て式の収納兼ベッドや学習用のデスクを収め、小さくても機能的なスペースを実現しました。
その隣には、寝室として使っている和室があります。
3畳とコンパクトなので、収納は床から浮かせ、布団をゆったり敷ける仕様にしました。
動線を考慮して、水まわりには回遊性を
2方向からアクセスできる洗面脱衣所には、大型と普通サイズのシンクを設けてダブルシンクに。「大きい方は朝シャンに重宝。同時にもう1つのシンクを使えるのでストレスがありません」と妻。
奥に抜けると、整理収納アドバイザーに相談してつくったというウォークインクロゼットが。通り抜けができ、寝室から水まわりへの近道としても機能します。
部屋数はそのままに、廊下をなくし、個室を最小限の広さに抑えたことで、広さと解放感が生まれたN邸。「動線もしっかり検討してもらい、LDKから水まわり、ウォークインクロゼット、寝室、LDKと回遊できて、とても便利になりました」と夫妻は話してくれました。
間取り(リノベーション前後)
リノベーション前
リノベーション後
※情報は「リライフプラスvol.36」取材時のものです
設計/nuリノベーション 撮影/水谷綾子













