ライフスタイルの変化とともに、住まいの使い方は変わります。戸井田さん夫妻が考えたのは、「複合用途」の家。ひとつの空間を、そのときどきで民泊施設に、子ども部屋にと使用目的を変え、いつまでも心地よく暮らせるようにしました。伝統構法を用いた母屋のLDK。土壁や柱、梁が年月を重ねたかのような味わいをもたらしています。和の空間を彩るアイテムには、モダンな印象の家具をチョイス。ソファはイタリア製フレックスフォルムの「GROUNDPIECE」、ダイニングには、インドネシア製のチーク無垢材テーブル+イギリス製のヴィンテージチェアを添えています。
すべての画像を見る(全22枚)離れを子ども部屋や民泊に利用、長く住み継げる住まいに
戸井田さんの家 神奈川県 家族構成/夫52歳 妻42歳 長女2歳
設計/アッタ
この家のこだわりポイント
- 日本古来の伝統構法を用いたLDK
- インテリアはシンプルな和モダンスタイル
- 屋外プールでアジアンリゾート気分に
- 民泊として機能する離れを設置
母屋(右)と、現在は民泊施設である離れ(左)を渡り廊下でつないだコの字プランを採用しました。
「癒やしを感じられる空間にしたかったんです」と妻の愛美さん。母屋南側のプールは、夏のおうちレジャーとして大活躍 LDKからプールを介して、江の島への眺望が楽しめます。
暮らしの変化をふまえたサスティナブルな住まい
相模湾と江の島を望む、豊かな緑に囲まれた高台にある戸井田さんの家。自然に恵まれた環境のもと、生活の拠点となる母屋と、民泊施設を兼ねる離れの、2棟構成の住まいを建てました。
夫の晃英さんは、インテリアデザイナーであるとともに、祖父の代から営む工務店を継ぐ3代目。
「先代からのお付き合いのお客さまもいるのですが、家族構成や生活の変化に対応できない家が多いことが気になっていて。子どもが独立したあとは使われなくなった子ども部屋が物置になり、そのうち大きな家を持て余して売りに出してしまう。これではせっかく建てた家がもったいない。そこで、ライフステージが変化しても有効に使える空間づくりに焦点を当て、民泊できる離れを計画しました」
設計は、妻の愛美さん。敷地の南側に伝統構法を用いた母屋、北側には民泊用の寝室+リビングを設置した在来工法による離れを配しました。2棟をつなぐ渡り廊下は、家族と民泊ゲストが共有する洗濯室に。離れは、長女が成長したら子ども部屋、独立したら再び民泊として活用することを想定しています。
「共働きで毎日忙しいので、オンとオフの切り替えがスムーズにできる家にしたかった」(愛美さん)
母屋のLDKの南側に、テラスを介してプールを配置し、浴室には、眺望を楽しめる窓を設置。将来のライフスタイルの変化に対応して長く暮らせる家は、同時にアジアンリゾートの雰囲気を楽しめる空間にもなりました。
災害時には緊急水源になる崖地でも安心な屋外プール
多忙な日々を送る中、リラックスアイテムとして採用したプールですが、災害などの緊急時には生活水として活用することも想定。濾過設備を直輸入するなどして、工事費も抑えています。
リビングに大開口を設けて空調いらずの日々を実現
大開口から自然の光と風を存分に取り込み、エアコンを使わない省エネルギーの暮らしを送っています。
ガラス戸は、秋田県産の杉材を建具に使用。障子は晃英さん考案の跳ね上げ式で、景色を堪能できるようにしました。
伝統構法の粋を集めた和モダンなエコ住宅
実家の工務店を受け継ぎ、木造建築について深く学び直した晃英さん。「木の特性を生かした木組みの伝統構法は、今ではあまり用いられていません。その技術を継承して残したいと考え、採用しました」。
伝統構法は、クギなどの金物を使わず、仕口(部材を接合する加工)や継手(部材を継ぎ足す加工)で柱や梁などの構造体をつくり上げる技術。基礎は礎石に柱をじか置きする石場建て、壁は竹を格子に組んだ塗り壁の下地材・小舞をそのまま見せる土壁にして、日本建築の技を全面に取り入れた母屋をつくりました。
その一方で、離れは木造軸組工法で建築。それぞれの工法の住み心地や違い、特徴などを、日々の暮らしを通じて比較しているそうです。
また、自然を毎日身近に感じて暮らしたいと望んだ夫妻。母屋のLDKはテラスとプールに向けて大開口を設け、四季折々の光と風を享受する環境に整えました。さらに、夏場の冷気を取り込むため、北側の床に開閉式の通風口を設置。大きな窓から取り込む風とともに、エアコンいらずで暮らせる環境を整えました。
シンプルな色でまとめた和のLDKですが、晃英さん厳選の家具がモダンな雰囲気を演出しています。製作された国や時代の異なる多様なアイテムをミクスチャーさせることで、自分たちの好きなものをちりばめた、唯一無二の空間に。五感にやさしくて心地よい、いつまでも愛情を持って暮らせる住まいが完成しました。
日本古来の伝統構法で長く住み継げる建物に
金物を一切使わず、仕口や継手で柱や梁を組んだ母屋。壁は、竹を格子状に組んだ下地材そのままの土壁にしました。伝統構法で建築することで、技術を継承するとともに、世代を超えて住み継げるサスティナブルな家を実現しました。
床に設けた通風口によって四季を通じて快適な環境に
夏場に涼風を得るために、通常は建物北側に地窓をつくります。戸井田邸は北側に収納を設けたため、代案として床に冷気を取り込む通風口を設置。冬はサイドの板をずらして通風口をふさぎ、床暖房を効果的に使えるようにしました。
冬の暖は薪ストーブで取りエコロジーな暮らしを送る
炎の揺らぎを眺めながら、オフの時間を満喫したいと考えて導入した薪ストーブ。床に十和田石を張った玄関に設置しました。リラックスアイテムでありますが、有事の際には煮炊きができるように調理ができる「METOS」をチョイス。
LDKの床には美しい色みのチーク無垢材を使用しました。アイランドキッチンはオリジナル。下引きの換気フードを採用し、すっきりとした見た目にこだわりました。
大黒柱や梁などの構造部分は、油に灰とベンガラを混ぜた自然塗料で濃茶に着色して古民家風に。階段など造作部分は無塗装で明るめの色で仕上げ、視覚的に心地よいと感じるカラーバランスに配慮。
光と風を思い切り楽しむ、明るく開放的な空間
母屋の浴室からは相模湾と江の島を眺められ、露天風呂気分を味わえます。「夕景を眺めながら1時間ぐらい入浴することもあります」と晃英さん。床には十和田石を採用し、置き型のバスタブを設置。
浴室と主寝室を隣接させ、ホテルライクな間取りを採用。かつて泊まった海外のホテルを参考にしたそう。
朝の身支度をスムーズに行えるよう、洗面カウンターを大きくつくり、イタリア製「FLAMINIA」の洗面ボウルを2つセット。カウンターの足元には、冬場の冷え対策にすのこを敷きました。
主寝室の上部に畳敷きのロフトを設置。ゲストルームや子どもの遊びスペースとして多目的に活用しています。
母屋は、玄関を入ってすぐLDKが広がり、床もフラットに続くオープンスタイル。玄関の脇にシューズクローゼットを兼ねる収納スペースをつくり、生活感が出にくいように配慮しました。障子の引き戸を用いているため、LDKの和モダンな雰囲気を損なうことがありません。
母屋と離れをつなぐ渡り廊下は、民泊ゲストと共有する洗濯室に。「2台ずつある洗濯機と乾燥機をフル稼働させると、毎日の家事の時短にもつながるので便利です」と愛美さん。
那智石を敷き詰めた中庭を挟み、母屋(右手)と離れ(左)が向かい合います。母屋では、柱を礎石にじか置きする伝統構法の「石場建て」技術を見ることができます。外壁は、2棟ともに杉板張りにしました。
離れはリビングと寝室、その間に水回りを配した構成。浴室は中庭に面して半屋外に設けていますが、母屋からの視線を受けないため、リゾート気分で入浴を楽しめます。
木造軸組工法で建てた離れのリビング。母屋とは一変して壁はビニールクロス、アルミサッシの窓やエアコンも採用。家具はすべてバリ島のヴィンテージ。
周囲の街並みに溶け込むように、外壁は杉板張り、母屋の屋根には瓦を用いました。緑豊かなアプローチを抜けると、正面に民泊用の玄関、左手奥に母屋用の玄関があります。
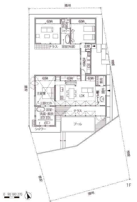
間取図
DATA
敷地面積/500.00㎡(151.52坪)
延床面積/159.32㎡(48.28坪)
用途地域/第1種低層住居専用地域
建ぺい率/40%
容積率/80%
構造/石場建て伝統構法+木造軸組工法
竣工/2018年8月
素材
[外部仕上げ]
屋根/瓦、ガルバリウム鋼板縦ハゼ葺き
外壁/竹小舞組土壁、杉板横張り、杉板縦張り
[内部仕上げ]
床/チーク
壁/土壁金ゴテ仕上げ、ビニールクロス
天井/野地板(杉)、ビニールクロス
設備
厨房機器:オーダーキッチン(IKEA)
衛生機器:TOTO、CERA
窓・サッシ:オリジナル(秋田杉)、YKK AP
施工/戸井田工務店
設計/戸井田愛美(アッタ)
撮影/中村風詩人 ※情報は「住まいの設計2021年10月号」取材時のものです





















