環境優先で購入を決めたのは、団地の1階の約100㎡の物件。家具や照明が好きで、デザインにもこだわりのある夫の理想を詰め込んでリノベーションしました。回遊性が高く、機能美あふれる造作キッチン、シンプルでありながら使いやすくスッキリと見える工夫がされたサニタリーなど、こだわりの詰まった住まいをさっそく見せていただきましょう。
すべての画像を見る(全17枚)目次:
庭との一体感が楽しめるリビングダイニング回遊性が高く、機能美あふれる造作キッチン追加予算を組んで、予定外だった寝室と和室も一新生活感や味気ないデザインを隠して好みの空間に間取り(リノベーション前後)庭との一体感が楽しめるリビングダイニング
フルタイムで働く妻が第2子を妊娠し、両親に子育てを手伝ってもらうべく、Mさん夫妻は夫の実家近くの団地の一室を購入。リノベーションするにあたってコンタクトを取ったのは、建築家の青木律典さんでした。
実は青木さん自身もリノベーションした団地の一室に暮らしています。その住まいを雑誌やネットで目にして「青木さんとなら、自分たちらしい住まいをつくれそう」と確信したとか。
図書館のような、静かで機能的なデザインが好きという夫。その理想のイメージを形にしてくれたのが青木さんでした。
隣接していた和室を撤去して広い面積を確保したリビングダイニングは、床に無垢のオーク材を採用。夫の大事なコレクションである、シャルロット・ペリアンやルイスポールセンの照明が映える空間です。
キッチンとリビングダイニングの境界に設けたカウンター。キッチン側はオープン収納、リビングダイニング側は取っ手やツマミのないフラットな扉つき収納になっています。
南に面したリビングダイニングの大開口には、障子と板戸を造作。障子を閉めると視線をさえぎりながら光を取り入れることができ、引き込むと板戸だけが見えるように計算されています。
1階の物件ならではの庭を存分に楽しめるよう、デッキと庭へ下りられる階段も設けました。敷地のすぐ隣には夫が子ども時代に遊んでいた公園があり、自然豊かな環境が物件購入の決め手になったといいます。
【この住まいのデータ】
▼家族構成
夫33歳 妻33歳 長男3歳 長女0歳
▼リノベを選んだ理由
夫の実家近くの物件を探し、新築マンションと築30年超の団地が候補に。新築マンションの「おしゃれ感」が好きになれなかった。同時期に青木さんの自邸のことを知り、団地リノベに舵を切ることに
▼住宅の面積やコスト
専有面積/99.73㎡ 工事費/1200万円(税・設計料別)
回遊性が高く、機能美あふれる造作キッチン
夫が「図書館ぽくていちばん好き」というキッチンの眺め。青木さんの自宅を見て以来、キッチンは造作で、と決めていたそう。
造作キッチンの背面側には食材やストック品をたっぷり収納できるパントリーを設置。ワンタッチで開閉できるロールスクリーン付きなので、生活感のあるモノをすっきりと隠しておけます。
玄関からキッチンを見たところ。中へ入って左側に進むと廊下に出られます。キッチンからは洗面室やリビングダイニングへもすぐにアクセスできるようになっていて、回遊性の高い間取りになっています。
ムダに広かった玄関は、両サイドに靴だけでなくベビーカーなどもしまえる大容量の収納を設けることで、ほどよい広さに。扉はMさん夫妻が塗装しました。
専有面積が約100㎡と広いため、のっぺりとした印象にならないように、玄関と水回りはあえて天井高を抑えて、床材や壁の色を変えることで場を分けています。
追加予算を組んで、予定外だった寝室と和室も一新
LDK以外の個室は、和室と寝室の2室。和室は客間や将来の子ども部屋としてフレキシブルに使うことを想定。直線のデザインが生きたシンプルな障子が、空間に余韻をプラスしています。
当初、和室と寝室は手を入れない予定でしたが、青木さんのプランを見て「全部青木さんにやってもらいたくなって」(夫)追加予算を組んだそう。
寝室の床はリビングダイニングと同じ無垢のオーク材。エアコンの奥行と収納の奥行を合わせて、ビルトイン風に見せるという細かい工夫がされています。
壁の2面に大きな収納を設置した寝室。予算の都合で扉は付けず、ロールスクリーンで仕切っています。
生活感や味気ないデザインを隠して好みの空間に
シンプルな洗面室。生活感を出したくないという夫の希望で、洗面台の横に壁を立てて洗濯機の存在感をやわらげています。
洗面室内の浴室ドアの手前に、壁の塗装色と同じ色の開き戸を設置。開き戸を閉めれば味気ないデザインの浴室ドアが隠れて、洗面室と一体の壁のように見えます。
管理規約の関係で大きな間取り変更はしなかったM邸。それでも、当初伝えた「コレクションしてきた家具や照明が似合う空間」「モノを外に出さずに済むたっぷりの収納」「広々としたリビングダイニング」という要望はしっかりと実現。
そこに青木さんのデザイン力が加わって、「機能美の集積」と夫が絶賛する理想的な空間が完成しました。
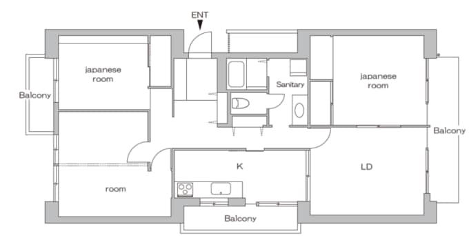
間取り(リノベーション前後)
リノベーション前
リノベーション後
設計/デザインライフ設計室
「暮らしから住まいをデザインする」がコンセプト。不動産会社と協働できるので物件探しからの依頼も可。代表の青木さんは FPや住宅ローンアドバイザーなど、住宅関係の様々な資格も持つ。新築、リノベーションを数多く手掛け、障子や格子を使ったモダンな空間づくりに定評がある。
撮影/飯貝拓司 ※情報は「リライフプラスvol.25」取材時のものです
















