検討を重ねるほど、間取りのプランニングに迷いが生じるものです。では、どのようにイメージを固めていけばよいのでしょうか?専門家の思考の変化を参考にしてみましょう。自身が住むマンションをリノベーションしたという、リノベーション会社「EcoDeco」の社員・岡野真弥さんの、初期プランと最終プランを紹介します。
岡野邸の初期プラン3案を公開!
まずは岡野邸のリノベ前の間取りをチェック。
すべての画像を見る(全7枚)バルコニー側にLDKと和室が配置された2LDKです。岡野さん一家は、キッチンがこもっていることや、バルコニー側の個室が和室であることなどに不満を感じていたそう。
そんなお悩みを解決すべく、岡野さんがつくり上げた初期プランは……? まずは「寝室と子ども部屋を一か所にまとめて、奥にLDKをもってくる」A案を見てみましょう。
A案では廊下が長くなってしまうのがネックですが、バルコニー側の窓に面してリビングダイニングを配置できるので、解放感はたっぷり出せそうです。
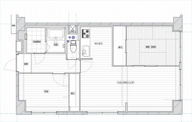
続いて「今と同じく寝室は離したまま、キッチンを対面にする」B案。
現状の間取りとほぼ同じレイアウトで、キッチンを対面式に変更しています。ただ、キッチンに出入りする通路幅が確保できていません。
最後に「玄関入ってすぐにLDKがあり、奥に寝室がある」C案。
「廊下面積を少なくしてLDKを広くできないか?」と考えたパターンですが、トイレやお風呂の音が気になるということと、リビングから廊下を挟まずに直接トイレに入るのはちょっと……という考えから、玄関先に少し廊下を残しました。洗濯物を干すときに寝室を経由しないとバルコニーに出られない、という点がややネックです。
岡野さんが選んだ間取りプランは?
家族で図面を見ながら様々な生活シーンを想像して話し合った結果、岡野邸はA案をベースにすることに決定。
「自分たちの暮らしに合わせた間取りはどれか」を家族と確認し合う際は、今回の岡野さんのように、いくつかの候補図面を見ながら行うとイメージがしやすいです。また、比較検討によって今まで考えていなかった要望も出てきたりもします。
「間取りの打ち合わせ時に、あえてダメ案をネタとして提示することで、話が深堀りできることもあるんですよ」と岡野さんは話します。なるほど!
大枠の間取りをベースに、ひたすら詳細を詰めよう
現在の岡野さんの住まい(撮影 山田耕司)
間取りのベースとなる初期プランが決まったら、次は細かい内容を検討し、決めていくフェーズに入ります。家族会議で出てきた要望や改善点をクリアにしていきながら、岡野邸の初期プラン~最終プランが決定するまでに調整したポイントはこちら。
キッチンを壁向きからリビング側向きにして対面に
元々こもっていたキッチンを初期プランでは壁付けにしていましたが、奥様の要望でさらに対面式に変更。また、岡野邸は直床なので、キッチンの排水管処理のため部分的に二重床にすることになりました。
パントリーよりも書庫スペースを優先
初期プランではリビングに本棚を計画していましたが、それだけでは収納量が足りません。本の日焼け回避も考えて、やはり書庫が必要ということに。本好きの奥様は書庫に椅子を置いて、本に囲まれた空間を楽しみたいという思いもあったそうです。
そこで、余分に確保していたパントリーを縮小。廊下となっていた通路にも本棚を設けることで、「ただ歩くだけ」の空間を減らしました。
廊下収納を減らして、トイレに手洗いを設置
タンクレストイレにしたいからトイレには手洗いも必要、ということで、廊下収納の幅を少し狭めました。
寝室に室内窓を設けて、通気&採光がいい解放感ある空間に
「リビングはコンパクトでもいいけれど、壁にさえぎられて狭く感じてしまうのは避けたい」と考え、リビングに隣接する寝室に室内窓を計画しました。L字型の窓にすることで、できるだけ広がりを確保。また、将来自宅介護が必要になったときも、介護者がリビングからベッドの様子を確認できるという利点もあります。
子ども部屋は玄関側の個室に
リビングを経由して子ども部屋に入る動線のほうがよいかとも考え、寝室と子ども部屋をどっちにするか悩んだそう。ですが、「思春期は閉じこもりたくなるもんだ!」ということで、子ども部屋は玄関側に。
「大学生になっても子どもがこの家で暮らすかも」と考えると、やはり玄関側がベストです。そして、子どもがひとり暮らしを始めたら、夫婦それぞれに個室をもって、好き勝手に使おうということになりました。
岡野邸の最終プランは?
そして完成したのがこちらの最終プラン。ぼんやりしていた細部もクリアになり、リノベーション計画に現実味が出てきました。
書庫スペースができたことで、黄色の「ザ・廊下」なエリアが減り、LDKに近いゾーンが増えた印象です。LDKだけで生活するわけではないので、それ以外の場所も大切だと考える岡野さん。プラスアルファ的な場所をつくることによって、暮らしの楽しみが広がったように感じているそうです。
また、岡野邸のリノベーション工事中の仮住まいは、自宅よりも10平米ほど狭い空間でした。各スペースが自宅よりも少しずつ狭いのですが、リビングとダイニングで夫婦別々に過ごす距離感が心地よかったり、空間に無駄な余白がなくてしっくりきたりと、「広い」ことが無条件にいいわけではない、と実感したのだそう。
家具のレイアウトと空間のバランス、空白の意味。身体感覚として落ち着く環境。人と人との距離感。物量がどれくらいあるのか。どこから何が見え、何が見えない方が落ち着くのか。
これらのことがとても重要だと岡野さんは話します。暮らしの全体をイメージして初期プランをつくり、それを土台にして細かい生活シーンを想定しながら詳細を詰めていく。間取りプランの模索はリノベーションの要ともいえます。家族でしっかり話し合いながら、暮らしやすく、自分たちらしい空間をつくり上げていきましょう!
取材協力/EcoDeco





