近年人気の「薪ストーブ」。家づくりで導入を検討する際、メンテナンスやコスト、置き場所はどうするかなど、気になっている人も少なくないのではないでしょうか。3年前に地元の工務店で平屋の新築を建て、玄関に薪ストーブを設置した日刊住まいライターが、住んでみて気づいた薪ストーブのメリットとデメリットについてレポートします。
すべての画像を見る(全5枚)あえて「玄関」に薪ストーブを導入した理由
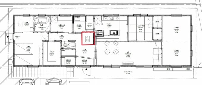
筆者は、夫婦と子ども3人(4歳、2歳、0歳)の5人家族。3年前に、延床面積31坪の平屋を地元工務店で建てました。夫婦で憧れていた薪ストーブ。設置場所に選んだのは、玄関ホールです。
当初は、リビングに設置することも考えましたが、最終的には玄関ホールに落ち着きました。理由は、ワンシーズンしか使用しない暖房器具がリビングで場所をとるのを避けたかったからです。そして3年経った今、この選択は正解だったと思っています。
●理由1:薪の搬入がラク
薪ストーブの生活は、想像以上に薪を運び入れる回数が多いものです。わが家では、その日使う分の薪を玄関土間まで運んでおいて、そこからストーブに入れます。
土間から近いことで運び込む手間も減らせる上、リビングを汚すこともなく、日々のストレスを大幅に軽減してくれています。
●理由2:家全体を1台の薪ストーブで温められる
わが家の間取りは、玄関が家の中央に位置します。玄関ホールにストーブを置くことで、両端にある寝室や子ども部屋まで、家じゅうをほんのり暖めてくれるのです。
「玄関が寒い」という冬場特有の悩みも、わが家では無縁。玄関扉をあけた瞬間、家全体が包み込まれるような温もりに迎えられる感覚は、この配置ならではです。
いちばんのメリットは「格別な暖かさ」
薪ストーブを導入していちばん感動したのは、その「格別な暖かさ」でした。エアコンのように温風を吹き出すのではなく、遠赤外線による輻射熱(ふくしゃねつ)で、壁や床、そして体の芯までじわじわと温めてくれます。
わが家では、いつも気温の下がり始める夕方から薪ストーブに火をつけます。そしてそのまま夜寝る前までしっかりと焚いておけば、翌朝になっても室温が急激に下がることはありません。そのおかげで、底冷えする冬の朝も、布団から出るのがおっくうではなくなりました。


