もし、離れて暮らしていた年老いた親と同居することになったら「お互いにストレスなく穏やかに暮らせるようにしたい」と考える人が大半ではないでしょうか。6年前に実家を二世帯住宅に改築して、親との同居をスタートした、ESSEonlineライターの小林ユリさんもそのひとり。今回、小林さんの二世帯住宅づくりの実体験をもとに、親との同居準備で「やってよかったこと」を語ります。
すべての画像を見る(全8枚)実家を二世帯住宅にした理由
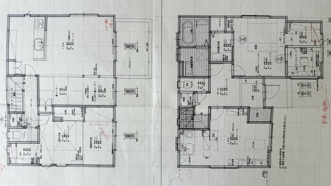
6年前に実家を二世帯住宅にリフォームした筆者。きっかけは筆者の通院でした。
一方で、母親はそれまで悠々自適なひとり暮らし。定期的な通院もしているため、同居すれば、家事を助け合えるなどのメリットもあるものの、「お互いにストレスがたまらないだろうか」「夫は気を使いすぎないだろうか」という不安も、正直ありました。
そこで重視したのが、同居ストレスを最小限にする家づくり。そのなかでもとくに意識したのは、生活音とプライバシーの確保でした。
少ない予算でのリフォームだったので、あれもこれもと理想をつめ込むわけにはいかず、どこにお金をかけて、どこを割りきるかについては、本当に悩みましたが、リフォーム前にネットや体験談をリサーチし、ストレスになりやすそうなポイントには思いきってお金をかける判断をしました。
親との同居準備で「やってよかったこと」4つ
親との同居で後悔しないために悩んだお金のかけどころは、下記の4つです。
現在、同居を始めて6年経ちましたが、この4つのポイントに関しては「やっておいてよかった」と感じています。
●1:水回りは共有しない設計に
二世帯住宅でいちばん「お金をかけて正解だった」と感じているのが、水回りの分離です。
お風呂やキッチン、トイレは生活リズムや衛生観念の違いが出やすく、「使いたいときに気を使わず使える」ことがなにより大事だと考えました。
わが家は決して広い家ではないので、水回りを共有にすれば、居住スペースはもう少し広く取れましたし、実際、水回りを世帯でわけたことで、100万円単位の追加費用も発生しました。
正直、費用はかかりましたが、「遠慮しながら暮らすストレス」がなくなったことを考えると、精神的コスパはかなり高かったと考えています。
なお、お風呂については、スペースと予算の都合から、ひとつをシャワールームに。
「今日は湯船じゃなくていいな」という日や、室内トレーニング後にサッと汗を流したいときにも重宝していて、これは結果的に大正解でした。
●2:間取りを工夫して生活音対策
どんなに気をつけても不満が生まれやすいのが「生活音」。目に見えない分、住み始めてから「こんなに響くとは…」となりやすい部分です。
一般的には年配者が1階、若い世代が2階というケースが多いと思いますが、わが家ではあえて逆に。
母はまだ足腰が弱っていないこともあり、生活リズムがどうしても遅くなりがちな筆者たち夫婦が1階で暮らすことにしました。
さらにリビングも別々にし、さらに位置を上下階でずらすことで、日常の生活音が直接伝わりにくい間取りにしました。
●3:二重床と壁材で防音対策
また、わが家では「少しでも防音対策になれば」という理由もあり、床を二重床にし、壁材には吸音効果や生活音軽減が期待できる珪藻土を採用しています。
珪藻土は塗り壁のため、一般的な壁紙仕上げよりも倍以上の費用がかかりましたが、生活音をそこまで神経質に気にしなくていい快適さは想像以上です。
「音でイライラしない」というだけで、同居のハードルはぐっと下がると実感しています。
●4:階段とトイレに「手すり」を設置
階段はもちろんのこと、1階・2階のトイレにも、最初から手すりを設置しました。
とくに、1階のトイレにも手すりをつけたのは、将来的に母が下の階で暮らすようになる可能性も考えてのこと。今はまだ使わなくても、あとから追加工事をするより、最初に入れておいた方が結果的に安くすみます。
「今」よりも「数年後」を見すえた設備投資は、ムダになりにくいと感じています。






