回遊できる動線の確保で家事がラク!
すべての画像を見る(全21枚)約30畳のLDK+小上がり。薪ストーブの脇に取りつけたリビングドアを開ければ、玄関土間と一体化した大空間に。小上がりの下部は収納に活用。ロフトは将来、子ども室として使う予定です。
「手を加えていけるように」と、キッチンは木製で造作。奥の扉からは、ウォークインクローゼットを介して洗濯機のある洗面室に移動できます。
階段横のドアを通って洗面室からLDKに戻れるので、調理や洗濯などの家事が効率よく行えます。
雨の日も洗濯物が干せるように、物干しポールを取りつけた脱衣室。
高窓や天窓から日が入り、「窓を開ければ風も通ってよく乾く」と妻。
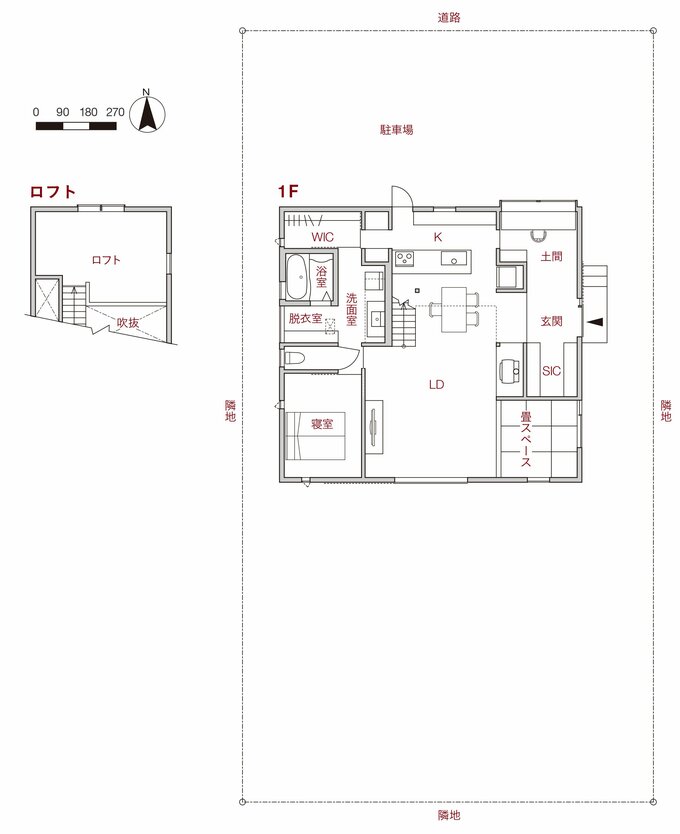
外観と間取り図
南側の外観は、モルタルの外壁にシルバーのサッシがよく溶け込んで、木製建具が際立つデザイン。外壁に塗ったモルタルの撥水塗装は、夫も参加して仕上げたそう。
玄関ドアは、キッチンにそろえて十字をモチーフにしたオリジナルデザイン。木塗装は夫が担当。
道路のある北側の外観は、ロフトのサッシが十字のように見える窓がアクセントに。
工務店紹介:建主の夢に寄り添う建築家集団の家づくり
●ますいいリビングカンパニー
工務店機能を持つ設計事務所として、住宅を中心に新築・リフォームを手がける同社。設計力や提案力に定評があり、自社大工による施工力の高さも魅力です。設計・施工を自社一貫で行う一方、セルフビルドによる建主参加の家づくりを推奨するなど、さまざまなアプローチで建主が理想とする住まいの実現を目指します。また、自然素材の多用や、国産・県産の無垢材を積極的に使う点も特徴です。
建築家・石山修武氏と協働してつくられた本社社屋。増井社長が出入り口にセルフビルドした枕木の階段も必見。
DATA
社名/ますいいリビングカンパニー
代表/増井真也
本社/〒332-0032埼玉県川口市中青木3-2-5
TEL048・254・8021
町田分室/〒195-0062東京都町田市大蔵町494-5
TEL042・737・3157
高崎分室/〒379-2146群馬県前橋市公田町644-3
TEL027・212・6169
年間建築棟数/新築15棟、リフォーム10棟
設立/1995年
建築エリア/関東一円
設計担当の柳澤和孝さん 石商中里で石職人として勤務後、フェリカ建築&デザイン専門学校建築設計工学科卒業。ますいいリビングカンパニーの本社勤務を経て、2019年より高崎分室を主宰。










