リノベーションは、長年あたためていたイメージやディテールを住まいに反映できる絶好の機会。Sさん夫妻は、1985年築の中古マンションをリノベする際、妻の好きな映画『恋するベーカリー』の世界観をモチーフにしました。初回の打ち合わせでは、プランナーにその映画のDVDを渡したというからユニーク! プランナーとの二人三脚で完成した、映画のモチーフがちりばめられた空間を見せていただきましょう。
すべての画像を見る(全13枚)映画『恋するベーカリー』のキッチンが理想!
妻が長年あこがれていたのは、アメリカの映画『恋するベーカリー』の主人公の家の雰囲気。打ち合わせでは、真っ先に「この映画のような家に住みたい」という希望を伝えたそうです。
なかでも、キッチンのセンターに据えたカウンターテーブルがお気に入り。「映画にも登場するのですが、ここで主人公が料理したり、家族が食べ物をつまみにきたり…。私もそんなスペースが欲しいと思っていたんです」と妻。
キッチンとカウンターテーブルは、妻の身長に合わせて高さを設定。既存の窓の内側には格子窓をつけて、海外の住まいのような雰囲気に。
映画では、キッチンとダイニングがアーチの下がり壁で仕切られています。S邸では、アーチのイメージをLDKから寝室や水回りにつながる廊下の入り口に採用しました。
【この住まいのデータ】
▼家族構成
夫37歳 妻37歳
▼リノベを選んだ理由
「家を持つなら中古マンションをリノベーションしたい」と考えていたため、事例の雰囲気が好みだったリノベーション会社・EcoDecoに物件探しからワンストップで依頼した。
▼住宅の面積やコスト
専有面積/90.21㎡
テレビ台を兼ねたパーティションをリビングに
以前は和室だったスペースを取り込んで、広々とさせたLDK。リビングに既存の電気温水器の配管があり、どうしても動かせなかったため、白い壁をつくって囲うというアイディアで空間になじませました。
この白い壁はテレビやテレビ関連のものをすっきりと納めつつ、玄関からの視線をさえぎるパーティションの役目も果たしています。
玄関からリビング方向を見たところ。パーティションのおかげでリビングが丸見えにならず、照明を仕込んだディスプレイコーナーが、家族やゲストをあたたかく迎えます。
リビングの天井には、夫の希望で設置したシーリングファンが。また、白い框扉がエレガントな収納スペースも造り付けました。
洗面室にも映画のイメージを生かして
サニタリーも映画をモチーフにしたデザインを採用。水栓とボウル、タオルバーはコーラー社のもので揃えました。洗濯機は上部がルーバーになった扉の中におさめています。
ヨーロッパから取り寄せた花柄の壁紙を部分的に採用したトイレ。位置はそのままで幅を広げたため、手洗いスペースも備えたゆったりとした空間になりました。鏡は壁紙の雰囲気に合わせてアンティークのものをセレクトしています。
クロゼットでつながる寝室と将来の子ども部屋
ウォークスルークロゼットを併設した寝室。既存の梁と柱を生かしてベッドを配置し、照明を仕込みました。「囲まれているベッドは安心感があり、カマクラと呼んでいます」と妻。
ウォークスルークロゼットを介して寝室とつながる、将来の子ども部屋。「子どもが楽しくなるような遊び心を加えて、いろいろ変えていくと思います」と夫。鳥かごがモチーフのペンダントライトが愛らしいワンポイントに。
映画をモチーフにしたオープンなキッチンは使い勝手もよく、夫も積極的に料理をするようになったとか。「将来は料理をする妻のそばで子どもが勉強をしてくれたらいいなと思っています」。
カウンターテーブルを主役に、人造大理石のキッチンカウンターやアイアンフレームの窓など、映画からヒントを得たインテリアをちりばめて、Sさん念願の住まいが実現しました。
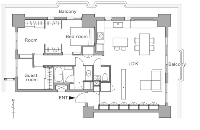
間取り(リノベーション前後)
リノベーション前
リノベーション後
設計/EcoDeco
リノベーション業界のパイオニアとして、中古物件探しからリノベーションまでのトータルコーディネートサービスをいち早く展開してきた。設計者を社内外で選べるだけでなく施工会社はコンペで決定でき、すべての過程でコーディネーターが相談に乗ってくれる。
撮影/山田耕司 ※情報は「リライフプラスvol.25」取材時のものです












