建物のドアを開けた瞬間にサプライズの連続。玄関土間の代わりに庭が現れ、その向こうにリビングが。庭は屋根で覆われていて壁もあり、家の全体が「庭」のような大胆な家。「中だけど外」で、まさに内外が一体となったMさんの家を取材しました。
すべての画像を見る(全15枚)目次:
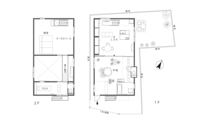
厳しい規制をクリアするために、庭を家の中に入れるプランに外庭と内庭に挟まれたアクセス良好なキッチン6m四方の箱に内庭と居住スペース。緑に包まれたミニマムな暮らしバスルームも内庭に!外部の視線を気にせず露天風呂気分が味わえる間取り図厳しい規制をクリアするために、庭を家の中に入れるプランに
神戸市のMさん夫妻は、ともに『渡辺篤史の建もの探訪』の長年のファン。「家を建てるなら建築家にお願いしたい」点で一致したそうです。そこで土地探しを含めて依頼した先が、建築家の島田陽さん。
「夫妻は中庭のある家を希望されていましたが、このエリアは開口部の制限が厳しい準防火地域。専用のサッシは分厚く小さいので、中庭と良い距離をつくるのは難しい。規制をクリアするために、庭を家の中に入れるプランが生まれました」と島田さん。
がっちりした外壁の中に中庭ならぬ「内庭」を取り込み、リビングとの間をシングルガラスの軽快な木製建具で仕切ることに成功。左右幅をフルに使った大きな開口が暮らしに自然を呼び込みます。
写真は入口から見た風景です。「家に帰ったのに外」という感覚が新鮮!庭は屋内という条件を生かし、露地(屋根がなく、雨が直接当たるような地面)だと寒さで傷んでしまう植物のうち、シルクジャスミンやニオイゼラニウムなど香りのいいものを選んで植えています。「アロマサロンを営んでいる奥さまが、フットバスに入れたりハーブティーにも利用できますから」(島田さん)。
トップライトから降り注ぐ太陽の光によって、庭は温室のような環境が保たれ、植物もすくすく成長。その一方で、直射日光がリビングに入らない工夫もなされています。
長女が遊ぶブランコは2階の渡り廊下を利用したもので、現場のノリでつくってみたら大好評。手前には吊り輪もつくられ、ここは長女の大好きな場所になりました。
【この住まいのデータ】
▼家族構成
30代夫婦+子ども1人(取材時)
▼理想の家
『渡辺篤史の建てもの探訪』の長年のファンで「家を建てるなら建築家にお願いしたい」と思っていた。理想の家は、素敵な中庭のある家。
▼住宅の面積やコスト
敷地面積/139.36㎡(42.23坪)、延床面積/ 117.37㎡(35.57坪) コスト/非公開
外庭と内庭に挟まれたアクセス良好なキッチン
M邸の敷地はL字型で、L字の突き出た部分に外庭が。この外庭と内庭に挟まれたキッチンもこだわった場所です。家族みんなで料理がつくれて、思い思いの方向からアクセスできるよう、正方形のキッチンを造作しました。「一緒に料理して食べるというのが、ぼくの考える家族の風景なんです」(夫)。流しも可動領域が広い水栓を採用し、使い勝手も良好です。おかげでここで暮らすようになって、夫がよく料理をするようになったとか。週末には自家製パンや手打ちのパスタも登場!
渡り廊下から見た内庭。洗面台も庭にむき出しで設置されています。庭を囲む壁には自然素材の建材モイスを採用。モイスは左官材のように調湿効果を持っており、土や植物から上がる湿気の調整に役立っています。
写真正面の上下の開口から心地よい風が入ってきます。テーブル回りの地面にレンガを敷く計画も進行中。「自分たちで変えられるのが楽しい。緑に包まれて暮らすのは憧れでしたが、それが自分の庭だと大変だけど、やっぱり面白い」(夫)。妻も、夫が毎日水やりをしてから出勤する姿に「思った以上に植物が好きなんだな」と感心したり。自分たちの暮らしの器が用意されると、何かやりたい気分になるようです。
6m四方の箱に内庭と居住スペース。緑に包まれたミニマムな暮らし
「中庭のある家が絶対条件で、居住空間はそんなに広くなくてもいいと思っていました」と夫。その言葉どおり、1階は6m四方の内庭とLDK、LDKの真上には寝室というミニマムな設計です。
寝室は吊り橋のような渡り廊下で、妻が営むアロマサロンと結ばれています。
アロマサロンの室内です。英国IFA認定アロマセラピストの資格を持つ妻は、家を建てるにあたり、サロンを併設することを希望。「生活空間とは距離を置いてほしい。またお店という感じでなく隠れ家的な雰囲気も求めたら、家の中でいちばんいい場所をもらえました(笑)」と妻は喜んでいました。
バスルームも内庭に!外部の視線を気にせず露天風呂気分が味わえる
アロマサロンの真下にあるのがバスルーム。内庭の片隅にあり、カーテンだけで仕切られた開放的な場所です。そばには、業務用シンクを設置しただけの洗面スペースも。
庭と一体化したバスタブからの眺め。外部からの視線を気にせず、露天風呂気分が味わえます。
内庭で存在感を放つクロゼットの扉を開けると、まさかのトイレ! リビングからは手前の踏み石がトイレへの通路になっています。
道路からの外観。サロンへの来客は、玄関扉横の外階段から出入りするようになっています。防火性能を確保するために、外壁の開口はすべてアルミサッシを使用。丸ごとガルバリウム鋼板で包まれて無機質に思える外観だからこそ、扉を開けたときの内庭の対比がいっそう新鮮なM邸です。
間取り図
設計/タトアーキテクツ/島田陽建築設計事務所 撮影/桑田瑞穂














