実際に購入したからわかる古家付きの土地のメリット
ここからは、古家付きの土地を購入し、その後、ハウスメーカーで家を建てた、筆者が感じたメリットをお話します。
●購入後の選択が多い
すべての画像を見る(全10枚)古家付きの土地を購入すると、その家をリフォームして住むという選択肢が生まれます。また、リフォームする場合も、フルリノベーションして住み続けるのか、それとも必要最低限のリフォームだけして数年後に建て替えるのかなど、新築で家を建てるという以外の選択肢があります。
不動産の価値としては、築20年程度でゼロとなってしまいます。しかし、築20年程度ならリフォームすれば十分に住み続けることが可能です。そのため、ライフステージや予算などに応じて、柔軟に対応できます。
わが家の場合は、最初はフルリノベーションをして住もうとも考えました。しかし、リフォームを相談した工務店の方に、「柱や基礎などの状態次第では、建て替えたほうが安くなる」と言われ、簡単なリフォームだけをし、5年程度住んだあとに建て替えるという選択を選びました。
●間取りなどをイメージしやすい
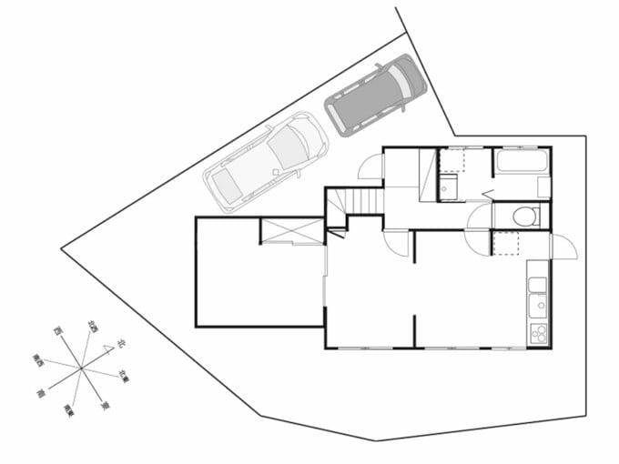
上の図は、筆者が購入した古家付きの土地の建物配置図です。この家でまず暮らしてみたことで、その後、新築した間取りやスペースの使い方が、イメージしやすくなりました。道路からの視線や、お隣との窓の関係、日当たりなどを実際に確かめることができてよかったと感じています。
既存の住宅の間取りをたたき台として、どの部分を改修すべきか、どのように新しく設計すればよいかを、具体的に考えられるのは大きな利点です。現物を見ながら計画を立てられるので、抽象的なプランニングに不安を感じる方にとっては、大きなメリットになるのではないでしょうか。
また、更地というのは目の錯覚なのか、実際よりも狭く見えます。そのため、こんな狭い土地を買って家が本当に立つんだろうかと、心配になる場合もあります。しかし、既存の家があれば家の大きさ、駐車スペース、庭の広さなどをイメージできます。

