江頭さんがこだわった7つのポイント
すべての画像を見る(全26枚)江頭さんの仕事場でもあるコワーキングスペース「DOTEMA」は、カフェのようなくつろぎ空間。ハンギングしたグリーンやタグチクラフテックのスピーカー「CUBE130 SERIES」がアクセントに。
1.豊かなコミュニティを育む「DOTEMA」
コワーキングの合間に、利用者は思い思いに憩いのひとときを楽しみます。「仕事に集中したあとの、ちょっとしたブレイクタイムでリフレッシュしています」と利用者のYさん。
2.平日の昼間はコワーキングスペースに
壁一面に収納した書籍やCDは、利用者も気軽に手にして楽しめます。オンライン利用時に使える、静かで集中できる個室も完備。
ステンシルで番号をDIYしたロッカーも申し込み制で利用できます。
3.週末はイベントスペースとしても活用
1階はイベント会場としても活用しています。キッチンの横にはDJブースも設置。イベント利用は平日18:00 ~ 23:00、休日9:00 ~ 23:00(写真/江頭さん提供)
4.みんなが集える楽しいデッキ
ウッドデッキも江頭さんご家族、コワーキングスペースの利用者、賃貸住人たちの交流スペース。「DOTEMA」は、線路脇の「土手」と1階の「土間」をかけ合わせてネーミング。
5.将来は飲食店もできる大型キッチン
コワーキング利用者が自由に使え、イベント時にも活躍するキッチンは、お手入れがラクなオールステンレス。
複数人でも使いやすいように、システムキッチンとtoolboxのシンクを組み合わせています。
6.気分が上がるパウダールーム
トイレには「女優ライト」をつけた鏡を設置。「仕事の合間に、ちょっと気分が上がれば」と江頭さん。小さなスペースにも利用者の気持ちに寄り添う心づかいが施されています。
7.部屋ごとに壁色を替えた賃貸住宅
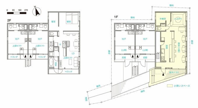
賃貸住宅は部屋ごとに壁色を替えています。1階2戸は土間と小ぶりな前庭があり、2階2戸はロフトつき。駅近で、渋谷と下北沢に出やすいという好条件の物件です。
間取り図と外観、周囲の環境について
●間取り図
●外観
ガルバリウム鋼版を焼きつけ塗装した、シャープな形状の外観。手前はワンルーム4戸の賃貸住宅で、奥に見えるのが自邸と「DOTEMA」。江頭さんの住まいはもともと、現在の賃貸住宅の場所にあり、隣地を購入して敷地を広げました。
●コワーキングスペースDOTEMA
AV設備やキッチンを完備。キッチンスタジオ、ワークショップなどの各種イベントも開催
・東京都世田谷区代沢2-48-3
・平日18:00~23:00、休日9:00~23:00











