間取り図と外観、周囲の環境について
すべての画像を見る(全28枚)
交通量の多い道路に面した玄関側のクールなたたずまい。道路から近い玄関が通行人の目に触れないように壁を立てました。プライバシーを守りつつ閉鎖的にならないよう、壁を斜めにカット。
景色を主役にした浴室とLDKで味わう非日常
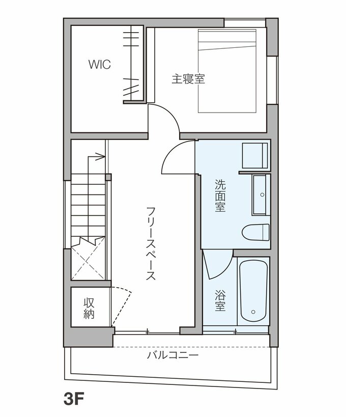
3階建てのYさん宅があるのは、眼下に住宅地を見下ろす高台。天候によっては、はるか遠くに富士山も望めるといいます。浴室は、いちばん眺めのいい最上階に配置しました。大きな窓の向こうには空が広がり、光と風がふんだんに入るさわやかな浴室です。
希望より小さめだったこの土地を即決で購入した理由は、眺望に大きな魅力を感じたから。それを最大限生かせる家にすることがYさん夫妻の希望でした。なかでもこだわったのが浴室の開放感。居室につけるような足元までの大きな掃き出し窓で、広い視界を得られます。この窓からバルコニーに行き来できるので、洗面室から洗濯物を運んで干すのにも便利です。
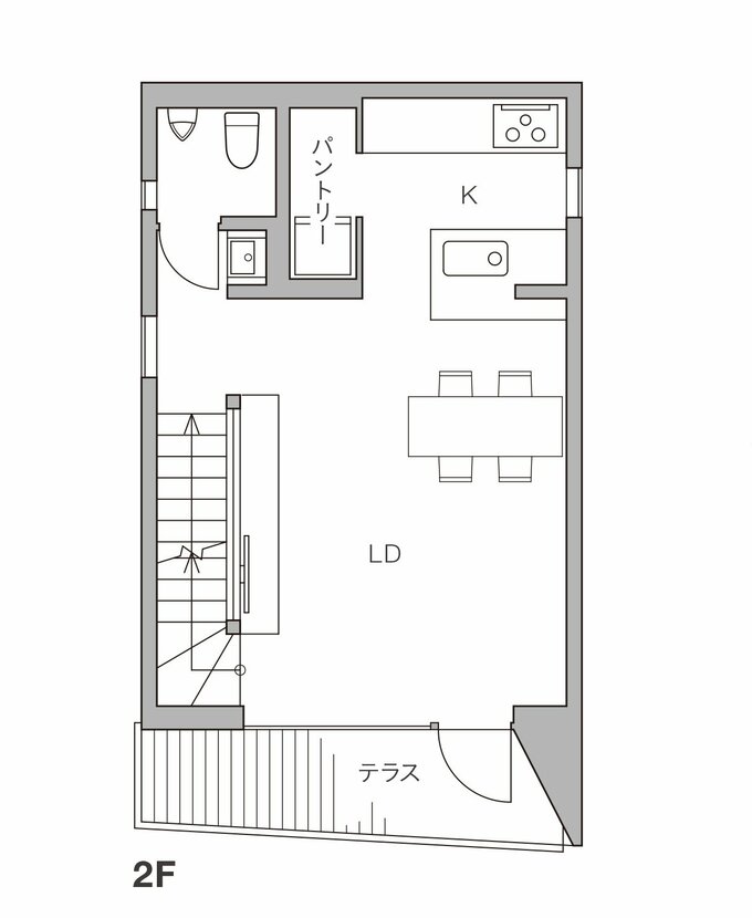
LDKは2階にあり、ここでも大きな窓からの眺望が抜群。室内からテラスへの自然なつながりが、浮遊感を高めます。「開放感がありつつも、暗めでこもれる場所も欲しいと思っていました」。
住まい全体は、グレーとブラックでまとめたシックな内装。インテリア好きの妻が厳選した家具や小物で彩る、シンプルでミニマルな空間。モダンでありつつ、繊細な陰影でしっとりした趣が加わっています。
引っ越し以来、明るい中で浴びる朝のシャワーや、キッチンから夕焼け空を眺めるひとときなど、日常で心洗われる瞬間が増えたという夫妻。家で過ごす時間を味わいつくしています。
開放感が心地よくて帰宅するのが楽しみに!
キッチンに立っているときも、リビング越しに気持ちのいい景色が眺められます。開放的でありつつこもり感もあわせ持つ空間。カチオンという下地材を塗った壁と天井は、残されたコテ跡のムラが光の効果で美しく浮かび上がります。
テラスには袖壁をつけて、眺望のいいところだけが見えるように視線をコントロール。腰壁をつけず浮遊感を強調。
玄関から見えるのは、小さい地窓のみ。外光の量を絞り込むことで、2階に上がったときの明るさや空間の広がりが増幅されます。土間部分を奥まで広げたことで、玄関にゆとりが生まれました。
グレーの壁に陰影が映る階段室は、美術館やギャラリーを思わせる美しさ。通常より広めに設定した2階から3階へ上がる階段は、蹴込み板をなくし、てスケルトンに。軽やかに見せています。
キッチン横のパントリーは必須アイテムのひとつ。小さな空間ですが、家電や食材のほか、冷蔵庫や分電盤などLDから見せたくないものを隠すのに十分。舞台裏を用意することで、主役のキッチンを美しく保つ労力を軽減。
ダイニングテーブルは結婚当時に購入したフランスのヴィンテージで、1.8mとたっぷりした長さ。モダンな空間に親しみやすさと温もりを添えています。
つくり込まずシンプルさに徹した造作キッチン。扉材と側面はラワン材+グレー塗装、天板はブラックのフィオレストーン。袖壁で囲んでこもれる感覚に。
「壁をきれいに見せたい」という妻のこだわりから、キッチンカウンター下に床置きエアコンを設置し、ルーバーで隠して存在感を消しました。
3階の寝室はこもり感を重視。落ち着いたたたずまいに
安眠できるこもり感を重視した3階の寝室。小さな窓2つだけで十分に光が回ります。壁にはスマホなどのちょい置きに便利なカウンターをつけました。
寝室にはウォークインクローゼットが付属。洗面室からもすぐなので、「たたんだ洗濯物をしまう動線が短くて助かっています」と妻。
引っ越し後にネコを飼うことになり、洗面室と寝室に隣接したフリールームは愛猫たちのスペースとして利用。日中の留守番時はここで過ごすため、脱走防止の格子戸をあとから加えました。IKEAで見つけたサイドボードは、サイズもカラーもジャストフィット。

















