洗面やトイレにも、自分たちらしさのこだわりを
すべての画像を見る(全19枚)洗面室は設備を一新し、広い人造大理石のカウンターとミラーでホテルライクに。朝の支度もメイクもゆったりとできます。壁はモールテックス仕上げ。右手に見えるバスタオルハンガーは、夫のお気に入り。
トイレにはタモ集成材のオープンカウンターを設け、夫が選んだ和テイストの手洗いボウルを配しています。丸いミラーは、妻が独身時代に玄関で使っていたお気に入りの品を活用。
廊下には、LDKと同じ表情豊かなブビンガのフローリングを採用。トイレや洗面、奥の洋室などのドアは既存を活用。ハンドルを変更し、塗装で床の色味になじませています。
夫妻とソファにネコ2匹。これが日常よくある風景だそう。日中自宅で仕事する妻は「ネコがいてくれると安心というか、寂しくないですね」。室内にはネコモチーフの雑貨やイラストなどがさりげなく飾られています。
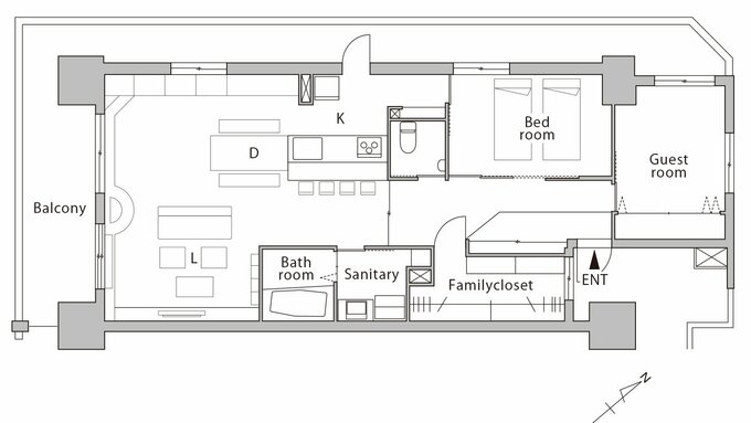
間取り(リノベーション前後)
リノベーション前
リノベーション後
大きな変更は、リビングの隣にあった洋室を撤去してLDを広げた点。これにより大きな壁面がリビングに加わり、ネコが遊べるつくりつけ書棚が新設することができました。キッチンは扉と壁面を変更。サニタリーは設備と内装を一新しています
DATA
建物規模:地上3階建ての3階
専有面積:95.08㎡
設計期間:2017年2月~6月
工事期間:2017年6月~9月
素材
玄関
床:既存
壁、天井:クロス
廊下、LD、主寝室、洋室
床:ブビンガ複合フローリング
壁、天井:クロス
キッチン
床:ブビンガ複合、フローリング
壁:大谷石、クロス
天井:クロス
洗面室、トイレ
床:フロアタイル
壁:モールテックス、クロス
天井:クロス
設備
キッチン
本体:既存(食洗機撤去)
コンロ:ハーマン
サニタリー
ユニットバス:既存
トイレ:TOTO
洗面ボウル、水栓:セラトレーディング
設計・施工:空間社
リノベーション向きの物件探し、同行内覧、資金計画、設計・施工まで一貫してサポート。「デザイン」「実用性」「コスト」の3つの要素のバランスに配慮した最良のプランを提案。上質感のあるデザインに定評がある。とくに渋谷区、目黒区、世田谷区を中心とした城南エリアが得意
※情報は「リライフプラスvol.43」取材時のものです





