歳月を感じる階段で2階へ
すべての画像を見る(全15枚)竣工時の面影を残す玄関ホールと階段。歳月を経たダークなトーンの木の色は、インテリア全体のメインカラーとして使われています。
2階にはインナーテラスがあり、コンクリートブロックの壁を隔てて、カーペット敷きのコーナーが。ここにはデンマークのデザイナー、コーア・クリントによるデザインのサファリチェアとル・コルビュジエによるデザインのスツール、LC14を配置しました。
「余白のスペースとでもいうか。ここから庭を眺めるのが好きです」と窪川さん。
吹き抜けに面した寝室は、梁を現し、手すりだけを取りつけて開放的に。そして床にはあたたかみのあるカーペットを。籐張りのパネルがついたベッドはウェグナーによるデザインです。
真ちゅうのモビール、マクラメのウォールハンギングがシンプルな空間のアクセントに。
寝室奥のコーナーには、デンマーク製のライティングビューローとチャーナーチェアを。ビューローの内側にはミラーがついていてドレッサーにもなります。
「新しい空間の緊張感があまり好きじゃないんですよね。古い家の方がくつろげます」という窪川さんが新たな命を吹き込み、モダンに住み継いだ前川建築。
この家とのんびりつき合いながら、「築100年をお祝いしてあげられたらいいな」と窪川さんは思っているそうです。
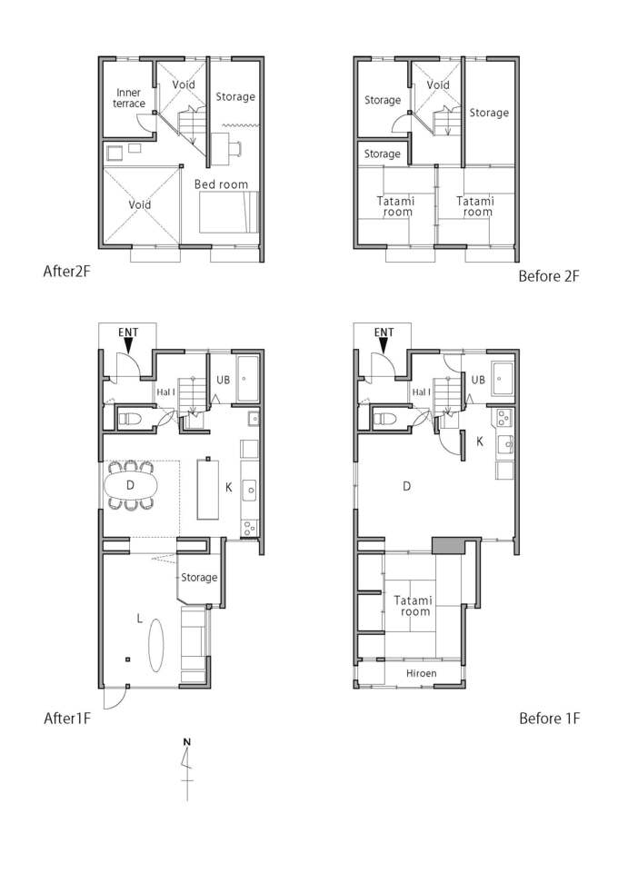
リノベーション前後の間取り
設計・施工/ADDReC、monotrum
※情報は「リライフプラス プレミアム No.1」取材時のものです





