自然素材がたっぷり使われ、中庭を介して柔らかな光が部屋に。そしてその中庭のおかげで、小さな子どもにも目が届き、安心に暮らせる…。そんな戸建てのプランをご紹介。こちらは、新潟県で暮らすOさん家族。家を建てるなら、なるべく自然の素材を使ったナチュラルで個性的なプランの家に住みたいと考えていたそうです。そこで自然由来の材料を使った家を建てるのが得意な、地元のサトウ工務店に依頼することに。でき上がったのは、六角形の中庭を囲む個性的な間取りの家でした。
すべての画像を見る(全18枚)光の入り方を計算しつくした六角形の中庭で、暮らしも快適に
Oさん夫妻が初めに希望したのは、平屋でした。
「生活動線がラクで、高齢になっても階段の上り下りなしで暮らせるし、無駄がなくていいと思っていました」
しかし提案されたのは、六角形の中庭を囲むような間取りの2階建て。
敷地は北側道路で、南と東西は隣家に囲まれています。
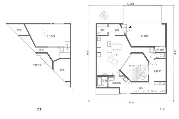
そこでサトウ工務店の佐藤さんは、南側隣家の影を想定。リビングに十分な光を得られ、隣家から内部を見下ろされないような建て方を探った結果が、六角形をした中庭を囲むプランだったのです。
LDKは中庭に面して大きな窓がありますが、周囲を壁で囲まれているため、外部の視線を気にせず一日中開放的に過ごせます。キッチンからも見通せるため、子どもが中庭で遊んでいても目が届き安心。
「ブラインドを閉めたことはないですね。太陽の動きがよく分かるし、夜には月も眺められます」
ワンルームのLDK全体が中庭からの光に包まれます。正面奥は玄関。ダイニング右側の通路の奥に階段があり、2階の子ども室へと通じています。家族が顔を合わせやすい間取りです。
板張りの壁に囲まれた中庭では、人目を気にせずリラックスして過ごせます。中庭の壁には新潟県産の杉板を採用。またデッキには水に強い特徴を持つ檜を用いました。室内の床との段差もなく、一体感を感じさせます。
夏は落葉樹の木陰も楽しむことも。
【この住まいのデータ】
▼家族構成
30代夫婦+子ども1人
▼家を建てた理由
このエリアでは、結婚して子どもが生まれれば、家を建てるのは普通のこと。歳をとっても暮らしやすい平屋に住みたいと思っていた。
▼住宅の面積やコスト
敷地面積/200.69㎡(60.82 坪) 延床面積/102.41㎡(31.03 坪) コスト/非公開
行き止まりのない間取りで暮らしが軽やかに
一番下の間取り図を見れば分かりますが、中庭は建物にぐるりと囲われています。リビングの隣のドアを開けると洗面脱衣室。さらに物干しスペース、ウォークインクロゼットへと連続しています。洗面脱衣室は広さに余裕があるので、洗濯物を干す作業や小さな子どもを着替えさせるのもラク。
室内物干しに沿った曇りガラスの向こうは、隣家ですが、これなら外からの視線も気になりません。ウォークインクロゼットの先を左に折れると寝室に至ります。
寝室も中庭に面して窓が設けられました。カーテン不要で、寝るときには月明かりも差し込んでくるそうです。
コスパのいい自然素材を活用した、優しい風合いの室内
O邸のもうひとつの大きな魅力は自然素材の活用。壁には「モイス」、床には無垢のパイン材、天井にはシナ合板を用い、中庭から届く光をやさしく拡散させています。
モイスとは聞き慣れない素材ですが、これはバーミキュライトという天然鉱物を含むパネル建材。佐藤さんによれば「調湿効果や消臭効果といった機能を持つ素材というと、珪藻土や漆喰などの塗り壁が一般的です。しかしこれらはやや高価なので、メインの部屋に使えてもなかなか全体に採用することはできません。その点モイスは塗り壁よりも安価なので、下駄箱やクロゼットなどにもたっぷり使えます」と話していました。
階段室の広い壁にもモイスを惜しみなく採用。左官壁のように自然なゆらぎを感じる奥深い表情も魅力的です。
南に面した室内干しコーナーは、陽光を受けつつ、調湿効果のあるモイスが湿気を吸ってくれるので洗濯物もよく乾くそう。自然素材の長所が暮らしの質を高めてくれています。床のパイン材は針葉樹。成長が早く空気を多く含むため、足裏にやわらかさや温かさを感じられます。モイス同様にコストパフォーマンスが高い自然素材。
玄関にはホワイトアッシュでつくったオリジナルの格子戸を設置。空間の連続性を保ちつつ視線を調整し、さらに無垢材の採用で、玄関にふさわしい高級感も演出します。
緩やかに気配を伝える2階の子ども室
2階建てにして十分な床面積を確保したO邸。2階は約14畳の子ども室1室で、将来は2室にも仕切れる余裕の広さです。傾斜した屋根もダイナミック!
傾斜天井に開いた天窓から光が降り注ぎます。夏場はこの窓を開けると上部にたまった熱気を排出され、中庭からの風を呼び込めるそうです。
子ども室はリビングと離れています。しかし、階段部分を天井までの壁で隔てず緩やかに1階とつなげました。このため離れていても、お互いの気配が感じられお互いの気配が感じられまます。
トイレの内壁もモイス張り。消臭効果が期待できるとか。
傾斜屋根がダイナミックなO邸。外観からは、内部にぽっかりと開いた中庭の存在を感じさせません。外壁は屋根と同じガルバリウム鋼板で、メンテナンスの手間がかからない仕上げ方法だそう。
特に要望したわけではなかったそうですが、結果的に夫が憧れていたカリフォルニアの住宅に近いイメージになりました。
インナーガレージから雨や雪にも濡れずに建物に入れる玄関。モイスの壁とモルタル塗りの土間がしっとりとした雰囲気を醸し出し、ここでも自然素材の魅力が発揮されていますね。
床や壁の各所に自然素材を取り入れた家。個性的な中庭から光を取り込むプランニングで、家のなかでも開放的に過ごせる暮らしが実現しました。
間取り
設計・施工/サトウ工務店 撮影/目黒伸宜

















