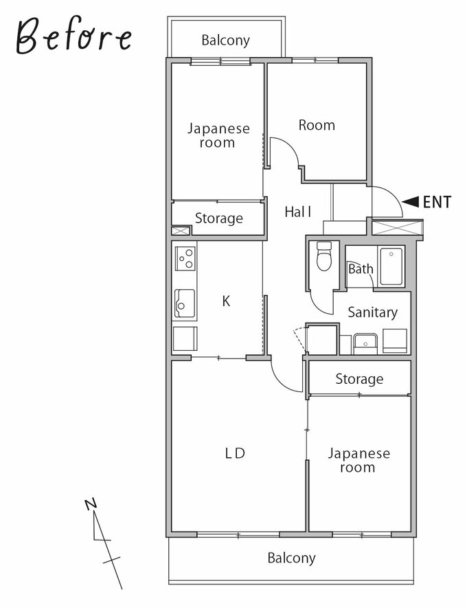
間取り(リノベーション前後)
すべての画像を見る(全25枚)リノベーション前
リノベーション後
部屋数を見直し、構造的に撤去できない壁を生かしながら、広いLDKや寝室+収納のある間取りに再構築。玄関ホールの床と寝室のドアは斜めに配置。廊下幅にゆとりを持たせ、LDKからウォークスルークローゼットへの移動をスムーズにしました。
家の各所に人とネコが快適に暮らせる工夫が
玄関ホールやリビング、ダイニングの床は、ネコが歩きやすいように、無垢のカバ桜を採用しています。
寝室は、ベッドを置いてもゆとりある広さ。
写真のようにネコ3匹が、ぎゅっとくっついて丸まって、寝ていることもあるそう(写真提供Sさん)。
2部屋をつなげてつくった寝室は、東側をウォークスルークローゼットに。北側に位置するため、外壁側の壁に断熱材を追加して結露を予防しています。
アートを飾った壁は、トイレと洗面室の間仕切り壁。洗面室側にネコドアをつくるために生まれた壁の凹凸を、トイレ側では飾り棚に活用。
床を斜めに配したことで、より広々と感じられる玄関ホール。寝室のドアはデザインにこだわり、ヘリンボーン張りにしてエレガントに。ドアの横をガラス張りにしたことで玄関に光が届きます。下部はネコたちが自由に出入りできるようオープンに。







