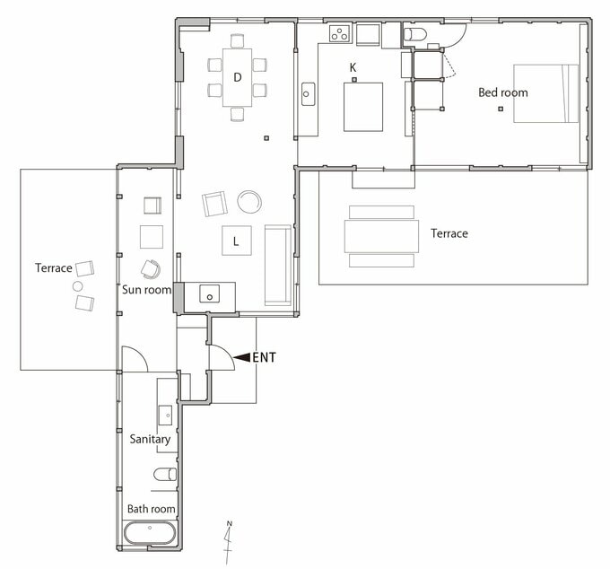
間取り(リノベーション前後)と外観
●間取り
すべての画像を見る(全16枚)リノベーション前
リノベーション後
もともとは終戦後、日本に来たアメリカ人写真家が設計した住宅だそう。強い海風から建物と中庭を守るために、海側に新しく細長い建物を増築。そこにサンルームとサニタリーなどを配置したことで、雁行しながら海に向かって伸びていくような形状となりました。
●外観
アプローチから続く庭には、タイムやセージなどを植え込んでいます。ふたりとも本格的な庭いじりは初めてですが、必要な道具をひと通りそろえ、少しずつ手を入れて楽しんでいるという。広々としたテラスも新設しました。
古きよきものと自然が調和する心地よい室内
インテリアにも古きよきものを大切にするフィリップさんのお気に入りがあちこちに。木材加工集団「ティンバークルー」のプロダクトをはじめ、アフリカの小物やラグ、ヨーロッパの食器などが並びます。写真は、既存の雪見障子や梁とモダンな家具が融合する、心地よいダイニング。欄間窓からは日差しが降り注ぎます。
玄関は、新たに設けたと思えないほどしっくりと空間になじんでいます。飛び石の先に見える建物は、フィリップさんがデザインしたゲストハウス。
ダイニングからリビング方向を見たところ。リビングとダイニングは既存の欄間と柱でほどよく仕切られています。あえてさまざまな時代、デザインの家具を合わせ、住まいをよりオリジナリティのあるものにしています。
高い美意識を感じるキッチンはL型+アイランドカウンターというスタイル。回遊動線が生まれたことで効率よく作業ができ、複数人でも作業がしやすくなっています。
壁面のオープン棚には、ラベリングされた調味料などのボトルが整然と並んでいます。常に整理整頓され、こまやかな配慮が行き届いたキッチンでは、ふたりの会話が絶えなません。
サンルームから続くサニタリー。増築したとは思えないほど、既存の建物となじんでいます。大きな窓を配し、開放的な空間に。置かれているアメニティやアートはお気に入りのものだけを厳選。
サニタリーの先にゆったりとしたバスルームを配置。豊かな緑を眺めながら入浴できます。洗面のワイドな木製カウンターやオープン棚も、この空間によくマッチしています。
以前のオーナーも外国人だったため、比較的天井が高かったという寝室。天井や柱は既存を生かし、建具はDIYで塗装しました。
かつて押し入れだったスペースを利用して寝室内にトイレを新設。快適さを高めました。










