リノベーションのコンセプトは「畑のなかのエレガンス」
すべての画像を見る(全23枚)小屋裏の床を抜いて吹き抜けにした大空間で、天井高は最大で6m。建物の状態はよかったものの、各所に耐震補強を施しています。
リノベーションのコンセプトは「畑のなかのエレガンス」。木組みを表した空間を花浅葱色(はなあさぎいろ)のアクセントウォールや、ノスタルジックなペンダントライトで、無国籍風に彩ります。
主寝室の前に設置されたデッキテラス。軒が深く張り出しているので、雨の日でもここで過ごせます。普段は洗濯物干し場にしているとか。
キッチン方向の眺め。8人座っても余裕があるダイニングテーブルも、平宅さんのデザイン。
「空間が大きいので、家具もそれなりのボリュームがないと、バランスが崩れてしまうんですよね」と平宅さん。床に使用したのは岡山県西粟倉村産の檜材。三重県尾鷲産のみつろうワックスで仕上げています。
長い梁の奥に見えるのは薪ストーブを置いたコーナー。ここは磁器質タイル貼り。大きな空間でも場所ごとに仕上げを変えれば、単調な印象になりません。
のんびり心穏やかに過ごせるのを実感しています
オープンタイプのⅡ型キッチン。空間を仕切るようにキッチンスペースの天井は低く。壁のモザイクタイルがアクセントに。
LDKと寝室の間にある書斎スペースは壁一面に書棚が設けられました。現在は子どもの遊び場や妻の趣味スペースに。
パブリックな性格を持つLDKと寝室などのプライベート空間はここで分けられています。
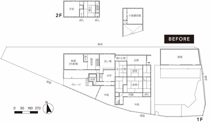
間取り(リノベーション前後)とディテール
リノベーション前
リノベーション後
LDK前を囲むように濡れ縁を新設しました。縁側ができたことで、室内と屋外の距離がぐんと縮まります。
ポコンと突き出たような玄関はトイレだった場所です。
納屋と野菜を栽培している庭。納屋はリノベせず、庭で使用するものやリノベ工事で出た資材などを入れています。
もとの建物で使っていた建具なども再利用。
「味わいがあって、雰囲気のいい建具がたくさん残っていたので、状態のいいものはレストアして使いました。手をかけて修復すれば、新しい仕上げにもよくなじみます」(平宅さん)。
室内側から眺めた玄関。オリジナルデザインの玄関ドアはヒバ材でつくりました。透明ガラスを組み込んでいるので、中からでも外の、外からは中の気配が感じられます。正面のシューズクローゼットも大容量。
ゆったりとしたトイレは、ボタニカル柄の輸入クロスで仕上げました。小さな空間ながらエレガンスな雰囲気を醸し出します。
独立型のバスタブとオーバーヘッドシャワー、貼り分けられた壁と床のタイルが印象的な浴室。個性的な雰囲気を醸し出す意匠がそこかしこにちりばめられています。
















