間取り図と外観、周囲の環境について
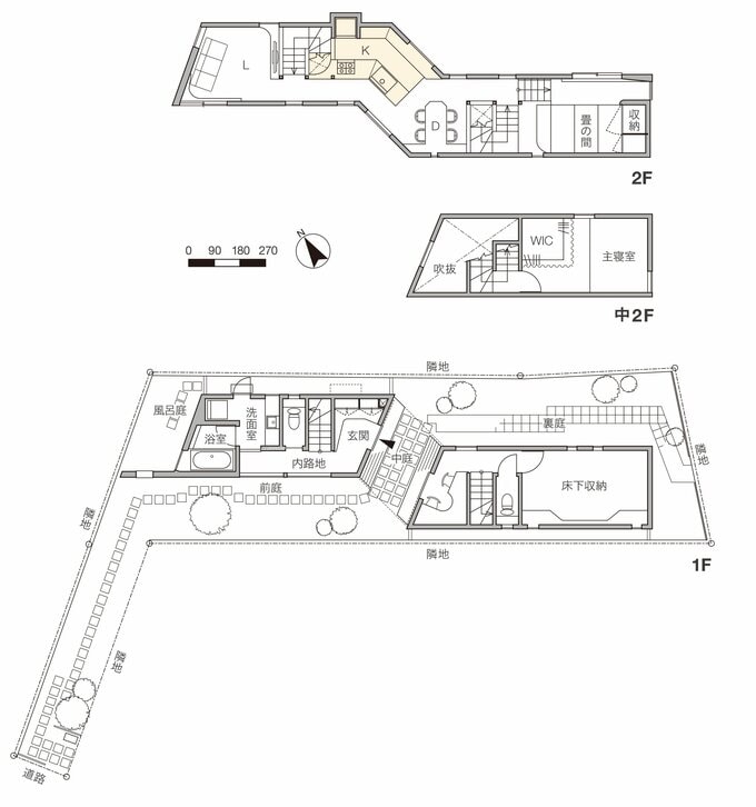
●間取り
すべての画像を見る(全30枚)●外観
シンボルツリーのオリーブを配した前庭を進むと、その先に玄関のある中庭が配されています。
造園は、川崎市の「アンドフラワー」に依頼。砂利は夫が自分で買ってきて敷いたものだそう。趣のある外壁は、2階が焼杉、1階がわら入りモルタルのツートン仕様。
道路側に格子状の目隠しフェンスを配した入り口。旗竿敷地のため、この先に前庭につながる約8mのアプローチが伸びています。
東側の私道から見た外観。2つの道路に面していて、通り抜けられるのがこの敷地の特徴です。敷地が細長いため建物も横長で、間口はコンパクトなのがわかります。
前庭とはやや趣の異なる裏庭。路地のような庭は長女が大好きな場所で、毎日のように外で遊んでいるそうです。
見え隠れが楽しい、曲がったひと続きの空間
東西に細長い敷地に建つ吉田さんの家。アプローチから続く路地のような前庭は細長い建物の中央を貫く中庭へと至り、さらに裏庭に続いています。
西と東の2つの棟に分かれた1階は、中庭を介して斜めに曲がりつつ、つながっています。LDKが配された2階も同様に中央部分が斜めに曲がり、そこに配されたのがキッチンです。
建物の形状に沿った「くの字」型のキッチンは、階段をはさんで西側のリビングと東側のダイニングの中間に配置。「遠からず近からず。適度な距離感が気に入っています」と夫。
リビングからダイニングは見えないけれどキッチンを介して気配が伝わり、スキップフロアによりダイニングから半階上がった畳スペースともゆるやかにつながっています。
オープンなキッチンは背面の大きな窓と棚も印象的。「全部見えると、使わない食器を奥に押し込んだりすることがなくなり、予想以上に便利」と妻。見せる収納を楽しめるようになり、大きな窓がもたらす開放感も気に入っているそうです。
一方、水回りやワークスペースを配した1階や寝室のある中2階は濃いブルーを基調とした空間で、明るい2階とのコントラストが秀逸です。「メリハリがあり、いろんな居場所があって楽しい。庭木やキッチンの食器なども増やしていき、徐々にいい家に育てていきたいです」(夫)。
くびれや高低差により多様な居場所がある住まいに
2階西側に位置するリビング。キッチンやダイニングとつながっていますが、丸見えにならないので、お互いの気配を感じつつゆったり過ごせます。
スキップフロアによりLDKより半階高くなった畳の間からの眺め。掘りごたつ式のカウンターが設けられており、書斎として使用したり、客間として使ったりすることも可能。天井が低いため、こもり感も楽しめます。
2階は扉のないワンルームですが、曲がっていたり段差があったりすることで、変化に富んでいます。
「いろんな居場所があるので、コロナ禍でもストレスなく過ごせました」と妻。









