アウトドアを楽しむ家のこだわりポイント
趣味のマリンスポーツに関する「もの」や「こと」は、すべて別棟に集約したAさんの住まい。外遊びを住まいに生かす、そんなポイントを紹介します。
1.使いつくす庭の形
すべての画像を見る(全27枚)目で楽しむ要素が多いのですが、Aさんの家の庭は、趣味の道具を組み立て、手入れし、片づけるための「用の庭」。芝生は道具を傷めないための緩衝材の役割も果たしています。
2.外部からの視線をコントロール
同じくマリンスポーツ好きの子どもたちや仲間と気の置けない時間を過ごすことが多いAさんの家。プライバシーを守るために道路側にはRCの壁が立てられ、東側の隣地境界には最小限の大きさの塀が設けられています。
3.釣った魚は母屋に持ち込まずここで調理
別棟の中央部分は屋根のついた土間空間。流しとガスコンロが置かれたミニキッチンで釣ってきた魚をさばけば、そのまま仲間とバーベキューが楽しめます。
4.海から帰ったらすぐにシャワー
道路側の入り口に近いところにシャワーが設置されていて、サーフィンなど海から戻ったらここで海水や砂を洗い流せます。サーフボードや釣り道具も一緒に洗い流せば、あとで手入れをする面倒がありません。
5.朝夕のリラックスタイムが楽しめるテラス
「夏の朝や夕方の涼しい時間、ここでうたた寝をするのは最高です」と夫。また、軒が深く、風の通るテラスは春や秋にはアウトドアカフェスペースとしても活躍。フラを習っている妻が友人を招いてティーパーティを催すことも。
6.アウトドアバスとつながる洗面室
海から戻った夫や仲間がシャワーを浴びて、アウトドアバスを使ったあとはリビングの開口部か、洗面室の出入り口から母屋に入れるようになっています。また、洗面室は洗濯乾燥室と隣接。洗濯物の処理も効率的です。
7.庭とリビングをつなげる土間空間
リビングの庭側の様子。天井までの高さがある2方向の大開口と土間によって、庭とシームレスにつながっています。
「うちを訪ねてくる人は、玄関を使わずたいてい庭から入ってきて、ここから出入りするんです」(妻)。
8.内と外がつながる浴室
アウトドアバスがあるのは、母屋の浴室の前。
屋内で入浴中に気分を変えて外の浴槽につかることも可能です。ちなみにアウトドアバスは深い軒の下にあるので落ち葉などが入ることもなく、メンテナンスがラクに。
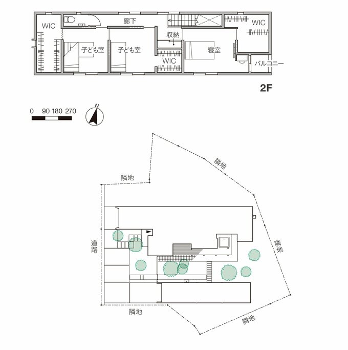
間取り図と外観、周囲の環境について
●間取り
●外観
前面道路との間に余白を持たせたことで、道路から見たときに圧迫感は感じられません。
駐車スペースに面して建つ別棟の倉庫。車を止めて道具の積み降ろしがしやすいよう考えられています。
少し引っ込んだ場所にある玄関扉。気の置けない来客が庭から入ってくるというのもうなずけます。














