店舗や外部空間に使うような建材や設備を取り入れて、ラフな雰囲気に仕上げるリノベが人気です。中古マンションのリノベに取り組んだKさん夫妻が目指したのも、そんなラフで無骨な雰囲気の住まい。プランや内装、インテリアの工夫で希望どおりの空間に仕上がったご自宅を、さっそく見せていただきましょう。
すべての画像を見る(全18枚)目次:
キッチンは業務用、天井はラフな雰囲気の躯体現しにモールテックスの床でリビングとダイニングの場を分ける自分たちらしさに機能性をプラスした寝室とウォークインクロゼット水回りはどこか懐かしい雰囲気に間取り(リノベーション前後)キッチンは業務用、天井はラフな雰囲気の躯体現しに
夫婦ともに古いものが好きというKさん夫妻。マイホーム購入に際して「ピカピカの新築は落ち着かない」と、中古マンションのリノベーションを選択しました。
リノベでこだわったのは、手持ちのアンティーク家具が似合う無骨な空間にすること。眺めのいい12階の物件で2方向に窓のあるダイニングキッチンには、業務用のステンレスキッチンを取り入れました。また、節ありの杉フローリング、躯体現しの天井と、ラフ&ハードな素材感を生かした空間に。
躯体現しの天井に合わせて、キッチンの壁はモルタル仕上げに。ダイニング空間と一体のオープンなキッチンにしたことで、妻は「自然とキレイにしようと心がけるようになった」とか。
大きなダイニングテーブルとベンチは、リノベを依頼したエイトデザインの家具ブランド「HACHI KAGU」にオーダーしたものです。
窓の上下には棚を造作。上部の棚は、アンティーク風に仕上げたガラス扉付きにして無骨さを演出しました。窓下の棚にはおもに食器を収めていますが、オープンなつくりなので出し入れがしやすいといいます。
【この住まいのデータ】
▼家族構成
夫35歳 妻36歳
▼リノベを選んだ理由
住んでいた社宅を3年後には出なければならないため、家探しをスタート。新築マンションは好みに合わず、古いものが好きな自分たちには中古マンションのリノベしかないと考えた。
▼住宅の面積やコスト
物件価格/2200万円 工事費/1470万円(税、オーダー家具込み)
モールテックスの床でリビングとダイニングの場を分ける
リビングの床は、モルタルの壁との相性がよく、ヒビなどが入りにくいモールテックス仕上げに。夫は、リビングのソファで雑誌を読んだり、お酒を飲んだりして過ごすのが最高のリフレッシュ法だそう。
夫お気に入りのソファも「HACHI KAGU」に依頼したもの。「デザインや革の色など、空間に合わせてトータルで提案してもらえました」と夫。ひと続きのリビングとダイニングキッチンは、床材を分けることでゆるやかに場を分けています。
社宅時代から愛用しているアンティークの棚も、無骨な雰囲気の空間にしっくりなじんでいます。
天井の近くに、CDなどを並べておける棚を造作。ワイルドな木目もこの部屋の雰囲気づくりにひと役買っています。
自分たちらしさに機能性をプラスした寝室とウォークインクロゼット
寝る前に漫画や雑誌を読みたいという夫の希望で、寝室の壁の上部に本棚を造作。手元灯も設置しました。両サイドにある室内窓は右がリビングに、左が玄関に面しています。
寝室は、リビングからも廊下からもアクセスできます。こちらは廊下側の出入り口。「夫が飲んで帰ってきても、そのまま横になれるんです(笑)」と妻。
こちらは、玄関から土間でつながるウォークインクロゼット。服や靴が好きな夫妻の希望で設けました。
ウォークインクロゼットは、シューズクローゼットも兼ねたスペース。同じ場所で服と靴のコーディネートができ、そのまま出かけられるのが便利です。玄関との間仕切り壁には、風通しを考慮して室内窓を設置しました。
水回りはどこか懐かしい雰囲気に
トイレの床には、雑誌を見てレトロな雰囲気に一目ぼれしたクッションフロアを採用しました。懐かしい雰囲気の既存の手洗い器も空間にマッチしています。
洗面台は下部がオープンになったシンプルなものに。壁出しの2ハンドル水栓や床のタイルで、個性を感じさせる空間に仕上がりました。
モルタル、ステンレス、節ありの無垢材、革など、内装とインテリアにハード&ラフな素材を多用して、希望だった「無骨な雰囲気」を叶えたKさん夫妻。プランナーがふたりの好みをくみ取り、さまざまな提案をしてくれたことが成功につながりました。
打ち合わせが楽しく、リノベ後は「エイトデザインロスになってしまった」と笑うKさん夫妻。理想の住まいを、忘れられない楽しい思い出とともに手に入れることができました。
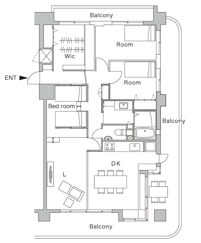
間取り(リノベーション前後)
リノベーション前
リノベーション後
設計・施工/エイトデザイン
「『楽しむ』をデザインしよう!」をモットーに活躍する名古屋・東京のデザイン集団。不動産部門もあるので、物件探しからのサポートも可能。オリジナル家具ブランド「HACHI KAGU」やカフェ、ライフスタイルショップ「EIGHT TOWN」も運営している
撮影/飯貝拓司 ※情報は「リライフプラスvol.25」取材時のものです

















