北向きの寝室が寒い。大きな収納はあるものの、ライフスタイルと合っていなくて床までものでいっぱい。20年暮らしたマンションで抱えていたそんな悩みをリノベで一挙に解決!寝室をリビングの一角に移動し、以前の寝室は使い勝手のいいウォークスルークロゼットに。同じ空間とは思えないほど、スッキリと、暮らしやすい住まいに変身しました。
すべての画像を見る(全14枚)寝室とLDKがゆるやかにつながる大空間
Hさんが暮らしながら不満を感じていたのは、寒い寝室と使いにくい収納。北側に位置していた寝室は南向きのLDKの一角へ移動し、視線や風が通るようにガラスパーティションで仕切りました。
寝室があった場所はウォークスルークロゼットにして、洋服や仕事道具をまとめて収納。ほかにも、必要な場所に必要な量の収納を設けたことで、LDKはスッキリ片付くようになりました。
鮮やかなブルーの塗装がアクセントのLDK。その一角にはリビングとゆるやかにつながる寝室とインナーテラスがあります。
フラワーデザインの仕事をしているHさんは、インナーテラスを「撮影にも使えるアトリエスペース」としても活用しています。
寝室を囲っているガラスパーティションの一部は開閉できるため、心地よい風を寝室まで送ることができます。リビングダイニング側から生活感が感じられないように、ベッドの高さまで壁を立てて視線を遮りました。
【この住まいのデータ】
▼家族構成
本人 50代
▼リノベを選んだ理由
父から譲り受けたマンションに20年住んでいたが、寒さや収納の使いにくさに不満を感じていた。住み慣れた街で暮らしたいという思いが強く、リノベーションすることに
▼住宅の面積
専有面積/65.00㎡
グリーンを存分に楽しめるダイニング
ダイニングスペースは二面に窓があって、たっぷりの陽が降り注ぎます。
ダイニングテーブルでは仕事をすることもあるため、脚がしっかり床について座りやすい高さ40㎝の椅子をベースに、無垢家具専門店「ソリウッド」にオーダーしました。
また、窓側の天井にはハンギングバーを取り付け、グリーンを吊り下げて楽しんでいます。
配管を通すためにせり出したダイニングの壁は、配管が通っていないスペースにニッチを設けて有効活用。グリーンや雑貨を飾って、ダイニングを彩っています。
ダイニング上部には棚を設置し、使用頻度の低いアイテムを収納。また、右手前の柱のキッチン側には、生活感が出やすい家電やごみ箱を収めました。リビングダイニングからは見えない位置なのでスッキリ。
IHコンロ下の引き出し収納には様々なサイズの器を収納しています。どこに何があるか、上から見ると一目瞭然で便利に使えます。
ウォークスルークロゼットで収納の悩みを解決
玄関からすぐの場所にウォークスルークロゼットを新設。入口が2か所あり、玄関側から入ると花器や書類など仕事関係のものと掃除道具、LDK側から入ると洋服類が並んでいて、奥でつながっています。かさばるスーツケースもサイズに合わせて収納をつくり、ピッタリ収めました。
サニタリーは2in1スタイルにしてスペースを有効活用しています。
洗面台の壁にはディック・ブルーナのモチーフを参考に、ハニカムタイルを貼りました。床材に使ったのはスウェーデン製のビニル織物床シート「ボロン」。足触りがよく、お手入れも簡単です。
H邸はリノベ時に断熱材の追加や窓を二重サッシも行いました。リノベ時にしかできない工事とデザイン的な部分のコストバランスに配慮しながらプランニングを進めました。
リノベーションによって、「用意された場所に収める」から「自分で収める場所を決める」が実現し、ものがピッタリ収まるようになったH邸。
「ライフスタイルや生活動線に合わせて、よく使うものを近くに置いたり、ジャストサイズの収納をつくったりできるのがリノベーションのいいところ。もっと早くリノベーションすればよかった」と少し悔しそうに、でも満足そうにHさんは話してくれました。
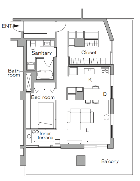
間取り(リノベーション前後)
リノベーション前
リノベーション後
プロデュース・設計/EcoDeco
中古マンションリノベのワンストップサービスのパイオニア。全コーディネーターが不動産探しから設計まで一貫して担当できるよう、不動産と設計のプロとしての知識と経験を併せ持つ。内見時には両方の視点からアドバイスができる。施工会社はコンペ形式で、公平性がある。福岡オフィスもある
撮影/矢崎貴大 ※情報は「リライフプラスvol.37」取材時のものです













