家づくりで間取りを検討する際、家具や家電のサイズまで具体的に決めておくことが理想。しかし、新しい家具や家電を購入する場合はなかなか難しい場合も…。今回、10か月ほど前に注文住宅を建てた日刊住まいライターが実際に体験した、間取りを決める際の「まさかのミス」と、その解決策について、詳しく語ります。
すべての画像を見る(全10枚)家づくりで見落としていた、家具や家電の「サイズ想定」
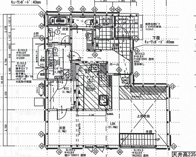
筆者は夫婦と1歳の娘との3人暮らしです。約10か月前に、大手ハウスメーカーで2階建て4LDKの注文住宅を建てました。
設計段階で、新しく購入する冷蔵庫と洗濯機のサイズを想定して、必要なスペースを確保した筆者。ところが、実際に冷蔵庫と洗濯機を設置してみると、思っていたよりも周囲に余白ができ、想定外のすき間が生じてしまったのです。
後悔しかない…住んで気づいた「想定外のミス」
想定外の隙間が生じたのは、おもに以下の3か所です。
・冷蔵庫横
・洗濯機横
・ランドリールーム内の収納棚横
冷蔵庫は放熱のために一定のスペースを確保する必要があるため、「左右に余裕があっても問題ない」と考えていました。その結果、正面から見た冷蔵庫の右側には約14.5cmの空間ができています。
ただ、実際に生活してみると、この隙間が想像以上に目につくように。
また、洗濯機横は排水口の位置の関係で31cmほどスペースが空いています。
さらに、ランドリールームは当初造作棚を設置する予定でしたが、予算の都合で既製の収納棚に変更することに。そのため、横幅がピッタリの収納棚を設置できず、こちらは14cmほどの隙間が生じています。
入居当初はそれほど気にならないと思っていた隙間。
ところが、暮らし始めるといずれも視界に入りやすい場所だったためか、徐々に気になるようになりました。



