間取り図と外観について
●間取り図
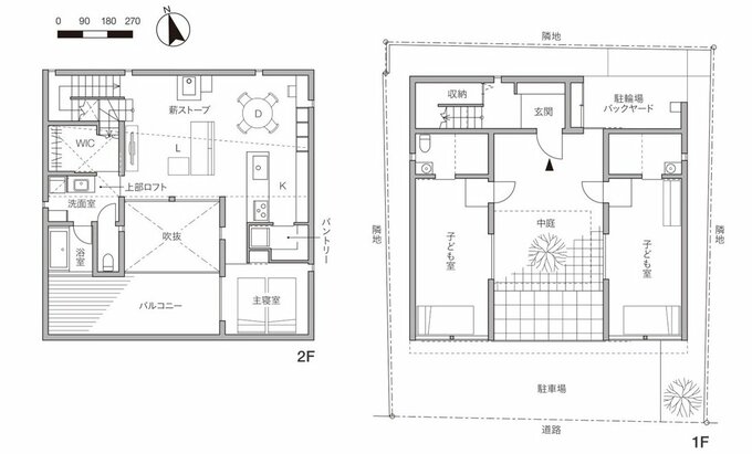
すべての画像を見る(全25枚)LDKを中心とした2階は、暮らしに必要十分なワンルームに。コンパクトな家事動線を望んだ妻は、キッチンはオープンにしてパントリーと背面収納を希望。洗面・浴室・ウォークインクロゼットをまとめ洗濯動線を集約しました。また、内装材を吟味して、国産の無垢材のフローリングや調湿効果のある壁材など、上質な素材使いにもこだわりました。
●外観
前面道路は人や車の通りが多いため、普段は国産杉の引き戸を閉じていますが、あけるとナツツバキを植樹した中庭が姿を現します。
写真右手にあるのは、移植した既存のキンカン。外観はプライバシーを重視したつくりに。2階を覆う外壁の円形ボイドは、設計を担当した飯沼竹一さんのデザインをベースに、妻が配置を決めました。
中庭の両サイドに子ども室を配置。
建物の裏手に、自転車置き場と屋外倉庫となるバックヤードを設け、ポストと宅配ボックスも設置しました。「メインの顔となる表は、スッキリとさせたかったのです」と、設計を担当した飯沼さん。
室内だけでなく、屋外の見た目にも配慮したアイデアは、暮らしやすい住まいづくりのお手本にしたいアイデアのひとつといえるでしょう
人目を気にせず過ごせる中庭と2階バルコニーは、Mさん家族のくつろぎの場。バーベキューやコーヒータイムを楽しみます。
LDKは家事動線がスムーズなワンルーム空間
上質な自然素材でまとめ、黒色の家具や薪ストーブを引き締め役にして、洗練されたモダンな大人のインテリアにまとめたLDK。子育てをへて、将来の自分たちらしい暮らしを思い描いた理想の空間が実現しました。
キッチンに壁づけ収納を設け、食器や調理器具などをすっきりと収めています。横にはパントリーを設置。片つけやすく、キッチンをいつもきれいに保てるようにしました。
「動きにムダがなく、ものの出し入れがしやすいので、家事がすごくラクになりました」(妻)。
ダイニングは上質な素材とモダンなデザインのミッドセンチュリースタイルに。「HIRASHIMA」のウォールナットのダイニングテーブルに、介護施設専門の設計事務所を主宰する夫がデザインしたイスを組み合わせて。
イスは座面の高さを変えられ、大きくラウンドした背もたれが腰にフィットして楽に座れます
キッチンの横に妻専用のパソコンコーナーを設置。
2階の上部にロフトを設けました。LDKが散らからないように、さまざまなものを一手に収納するスペースとして活用。風通しに配慮して小窓を設けています。
「寝室は寝るだけの空間だから」と、シンプルなつくりに。間接照明で落ち着いた雰囲気を演出しています。写真右手にはバルコニーが隣接し、昼間は光と風を取り込めるようにしました。
洗面台は造作。大きな鏡の内部に歯ブラシなどのゴチャつきがちなものを収納してスッキリと。妻が好むブルーのアクセントタイルが、清潔感と個性を両立しています。
タオルかけのバーや引き出しの取っ手などは、夫妻が直接ショールームへ出向いて選んだもの。











