毎日の暮らしは、繰り返される家事の積み重ねで成り立っています。つまり、その一つひとつの家事のストレスを減らせれば、負担はずっと軽くなることに。もしあなたが今、家づくりのプランニング中なら、デザインだけでなく、家事のしやすさについても検討してみましょう。今回は建築家・大島健二さんが、家事をラクにするための様々なアイデアを提案してくれました。大島さんが考えた「家事ラクハウス」の間取りをもとに、ケーススタディ形式で解説していきます。※30代共働き夫婦と3人の子供が、 延床面積100㎡強の一戸建て住宅で暮らすことを想定
すべての画像を見る(全12枚)キッチンから全体が見渡せるようにLDKをレイアウト
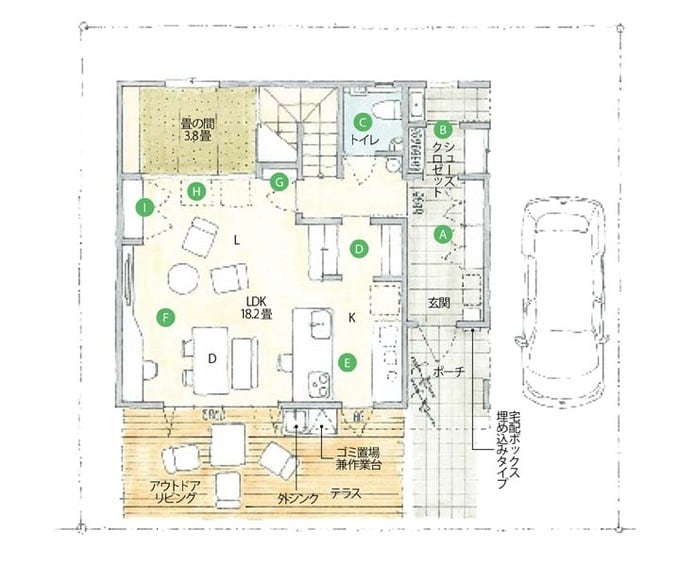
大島さんが重視するのは、多くの家事が集中するLDKをいかに効率的にレイアウトするかということ。
記事の始まりのほうにある間取り図を見てください。ここでのキッチンはいわば、家族みんなの様子を見守る場所。キッチンとダイニング、リビングに壁を設けず、キッチンから全体を見渡しやすいプランに。
共働きの忙しい夫婦でも、キッチンに居ながら子どもたちの様子を見守ることができます(間取り図 E・F参照)。
- ダイニングを多目的で使えるように
こちらは、ダイニングを有効に使うアイデア。テーブルの高さを60㎝程度に抑え、椅子も低いものにしてみました。
これなら小さな子どもは、ダイニングテーブルで絵本を読んだりお絵描きしたり。小学生なら、勉強もできます。また椅子を低くすることで、ダイニングが家族のくつろぎの場にも。食事のためだけのダイニングから、用途がずっと広がるようになりました(間取り図 F参照)。
- 3面から使えるキッチンカウンター
キッチンカウンターは3面から利用できるスタイルに。忙しい朝など、ダイニングテーブルまで食事を配膳するのは結構手間のかかるもの。キッチン天板の奥行きを90㎝以上にすれば、簡単な食事はカウンターですませることができます。さらに食べ終わったら、各自がシンクで食器を洗うようにすれば、かなり作業がラクになるはずです(間取り図 E)。
- キッチンの収納は両面から使えるようにして、子どもも手伝いやすく
イラストのように、食器を洗ってしまう動線と、食器を出して配膳する動線を分けることで、夫や子どもが配膳を手伝いやすくなります。また食品庫も兼ねた収納を玄関とキッチンの間に配置すれば、買い物してきた荷物を直接収納スペースに入れる裏動線としても機能します。来客のときも、一時的に置いた買い物袋などがリビングから見えることもありません(間取り図 D参照)。
- 設備機器のコントローラーやスイッチは一か所にまとめる
インターホンや電話機、給湯器、冷暖房のコントローラーなどはバラバラに配置するより、一か所にまとめれば、その場所が「わが家の司令塔」のように使えます。背面をコルクボードなどにしておけば、家族への伝言もメモにして貼っておくことができて便利(間取り図 G参照)。
散らからない工夫は使う場所に使うものを収納すること
- 室内に持ち込めないものは玄関で一括収納
玄関に大きめの収納を設け、外で使うものをまとめてしまう計画です。例えば洗車道具、ガーデニンググッズ、運動用具、ベビーカーetc。さらに花粉やほこりのついたコート等々。部屋の中に持ち込みたくないものは意外に多いのです。室内を清潔に保てるのもうれしいですね(間取り図 A参照)。
- 水道やシンクを設ければ、より多目的に使える
シューズクロゼットは、多目的に使えるようにしておくと、もっと便利になります。靴はもちろん、ケース買いするような飲料水やゴルフバッグ等も、車から直接出し入れできる動線があれば使い勝手も格段にアップ。バックヤード的な用途も兼ね、汚れた靴や衣服、泥のついた野菜などを洗えるよう水道やシンクを設けると、より多目的に使えます(間取り図 B参照)。
- LDKの収納で家事時短を
キッチンやリビングダイニングは、一日の中でも長く過ごすスペースなので、その場に掃除機や日用品などを収納することが重要です。こうすれば、少し離れた納戸に取りに行くより、ずっとラクで時短になります(間取り図 I参照)。
- 畳コーナーの下にも収納を
小上がりの畳コーナーをつくり、その下部は引き出し収納として活用しましょう。浅めの収納なので何を入れたか一目で分かります。また、畳スペース自体は、おしめを替えたりする育児スペース、子どもの遊び場、昼寝や応接の場所等、臨機応変に使用できるスペースになります(間取り図 H参照)。
洗濯をもっとラクにするランドリースペースのつくり方
- ランドリースペースの理想的動線とは
2階の洗面浴室のそばにランドリースペースを設け、さらにランドリースペースからバルコニーへ出られる動線を設けると理想的なプランになります。洗濯→干す→取り込む→たたむ→しまうといった一連の流れが同じ空間で行うことができるので、最小限の移動で済み、手間も時間も節約できます(間取り図 L参照)。
- ランドリーの収納は2面使いで
ランドリースペース内には室内干しやアイロンがけのスペースも設けるといいでしょう。同じスペース内に畳んだ衣類を収納できればさらに便利に。その場合、収納スペースは2面から出し入れできるようにすると、より使い勝手がよくなります(間取り図 L参照)。
- 余裕があれば、洗面ボウルを2つに
洗面室には、毎日使うタオルなどを収納できるスペースをつくりましょう。間取り図のプランの場合、洗面室は階段と隣り合っているので、その上部を収納に利用しました。またスペースに余裕があれば、洗面ボウルを2つ設置してみては?出社、登校前など朝の渋滞緩和にもなります(間取り図 M参照)。
大島さんの導き出した「家事ラクハウス」はコンパクトな間取りと分散型の収納スペース、効率のよい動線を核としながら、フレキシビリティを重視したプランニングでした。
こんな工夫があれば、夫や子どもたちも自然に家事参加できるようになりそう。家族ができることを分担して行うことができれば、それこそが「理想の家事ラクハウス」なのかもしれませんね。
監修・イラスト/大島健二(OCM一級建築士事務所)











