家づくりでこだわった7つのこと
工事中にもふたりで現場に来て、進捗の様子を眺めたり、壁のペイントをしたりと暮らす前から家への愛着は深まっていました。
「展示場を見てとくに気に入ったのは土間と薪ストーブです。ソロキャンプに行って焚き火をするのが好きだったので、薪ストーブはいながらにしてその雰囲気を楽しめます」(夫)
そんな夫の定位置は、土間に置かれたソファの薪ストーブ側なのだとか。
1.どんどん拡張する薪棚
すべての画像を見る(全26枚)駐車場の後ろにメインの薪棚があり、そのほかに敷地をぐるりと囲むように低い薪棚が設置されています。「じつはこれでもたりないくらい(笑)」。
メインの薪棚を改修し、隣地との境にも同じ高さの薪棚をつくる予定です。
2.DIYで拡張したキッチン
一直線に伸びる様子が印象的なキッチンは、DIYで延長されています。木のワークトップ部分はすべてDIYされたもの。
白い面材の棚は、もともとテレビボードだったものを流用。
IHコンロの横のキッチンペーパーを取りつけている部分もDIYで拡張。
3.テラスはアウトドア活動とDIYの場
テラスは標準工事に含まれるものから玄関前の奥行きを1m延長しています。
お手製のテーブルとイスを置いたこの場所は、ブランチを楽しんだり、DIYの工房になったり。ゲストを招いてバーベキューの場にも使います。
4.冬が楽しみになった薪ストーブ
「住宅展示場を見学したときに、土間に薪ストーブがあるのを見てほれ込みました」と夫。
家選びのきっかけになったアイテムだけに、愛着もひとしお。機種はヨツールの「F400」。11月から4月まで稼働します。
5.靴のままくつろげる土間空間
玄関扉を開けると、土間空間が広がっています。Wさん夫妻が気に入っているポイントのひとつ。「靴のままくつろげるのがいいですね」と夫。
ラグの敷かれた部分から、土足は禁止というルールにしています。
6.DIYのアイデアは無限
自由にカスタマイズできる住まいの特徴を存分に生かして、家の中や外のさまざまな場所で棚や収納をDIYしています。キッチンの棚もDIY。
こちらのゲタ箱もDIYしています。
イラストをもとにつくられた作品の数々は、つくったら終わりではなく常に高い完成度を求めて進化し続けているのだとか。
7.じつは外構もほぼDIYです
棚などの木の造作だけでなく、外部のれんが敷きも夫妻の力作。
「水勾配が取れていない部分が反省点」と夫は謙遜しますが、工事を見ていた近所の職人さんから、「十分職人になれる」とお墨つきをもらった完成度の高さです
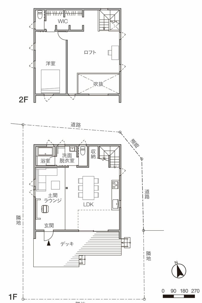
間取り図と外観について
●間取り図
●外観
四角い箱型の外観。建主が自分の手で暮らしをつくっていくというコンセプトは、シンプルな外観にも表れています。
竣工と同時に外構工事を自ら進めたWさん夫妻。右の白いパーゴラは妻の多肉植物をディスプレイするためのもの。春になるとフレームにバラが絡まり咲き誇るそう。
















