間取り図と外観、周囲の環境について
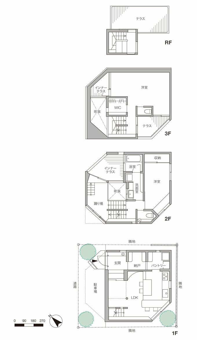
●間取り図
すべての画像を見る(全29枚)●外観
四角い建物の角を斜めに切り落とすことで近隣と向き合わないように配慮し、緑を配してアウトドアを身近に感じられる住まいを実現しています。
木製扉が樹木の緑と調和する玄関。スチール引手は、石川県の鍛造メーカー「平鍛治」の特注品。
玄関ドア横のガラスにはかわいいイラストが。窓ガラスに描いて水で消せるクレヨン「キットパス」で描いたもので、インナーテラスでも使用しています。
吹き抜けを中心に、見え隠れしながら部屋がつながる
踊り場から2階と1階を見たところ。左手奥の吹き抜けに面した横長の窓の向こうは洗面室。階段の壁面はすべて本棚になっており、階段に腰かけて本を読むこともあるそう。
この家のこだわりポイント
- 1.暮らしの近くに外を感じる家
2.ゴロゴロできる畳のリビング
3.階段壁面の本棚やウォークインクローゼットなど収納が充実
4.鮮やかな色の塗装や柄クロスを楽しむ
踊り場から見下ろせる1階には、畳敷きのリビングが。ゴロゴロできて癒やされる家族のお気に入りの場所。
リビングは全面畳敷きで、正面の壁は京都の和紙職人ハタノワタルさんの和紙を、みんなで1枚1枚貼ったものだそう。あえて和紙の裏を使っているのもポイント。
ダイニングキッチンでは外の緑を感じながら料理や食事ができます。「屋上のテラスでごはんを食べることも。家での過ごし方のバリエーションが増えました」(夫)。コンパクトでも、家族の楽しい居場所が詰まった住まいになっています。
キッチンからのリビングと踊り場の眺め。太い丸太の柱がリビングのシンボルになっています。階段のピンクの壁は内観のアクセントに。
造作のカウンターと手持ちテーブルを組み合わせたL型のダイニングキッチンは、床を下げることで畳のリビングをベンチ代わりに使用。
「テーブルは作業台として使えるので、みんなでピザをつくって、焼けたらカウンターで食べたり」(妻)。
見上げると各空間がまるでグラデーションのよう
吹き抜けを見上げたところ。グラデーションのようにつながっていくのがわかります。
洗面台上部の鏡つき引き戸を開けると吹き抜けとつながる洗面室。正面は浴室で、インナーテラスへとつながっています。
「普通は隅に追いやられがちですが、開放的な洗面室が家の中心近くにあることで、家族の声も聞こえて空間のつながりが強調されます。湿気がこもらないのもいいですね」と西久保さん。
3階の子ども部屋は、長男が使うようになってから壁などの仕上げを行う予定。三角形のインナーテラスを備えており、ゴーヤなどを育ててつるをはわせようと計画中。











