間取り図と外観、周囲の環境について
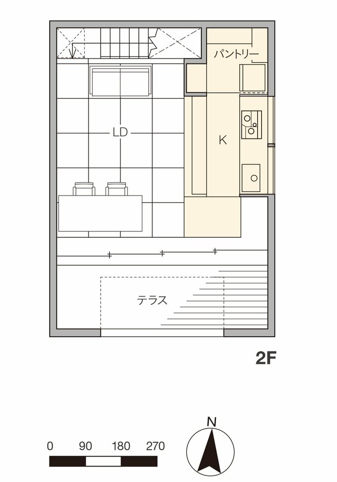
●間取り図
すべての画像を見る(全30枚)●外観
濃い茶色の外壁に植栽のグリーンが映える外観。植栽は1階スタディスペースの目隠しになっており、テラスに立ち上げた壁の上部からは、鉢植えのオリーブの葉が見えます。
限られた空間をフル活用。機能的で美しい住まい
都市部の住宅地のコンパクトな敷地に建つHさんの住まい。2階LDKは壁によって周囲からの視線をカットしつつ、テラスを設けて開放感と広がりを確保しています。縁側のようなベンチによってテラスとつながる畳敷きのリビングダイニングも印象的です。
キッチンは、「料理に集中したいので壁づけに。リビングから内部が見えないようにしてもらいました」と妻。壁面にはスリット窓を設け、料理に集中しつつも外の空気が感じられる空間に。
リビングダイニング側には食器などの収納を備えたカウンターを設置。上部は壁を立ち上げ、手元を隠せる作業スペースになっています。食品や冷蔵庫、その他の家電などはパントリーに収めることで、コンパクトながら機能的で、美しいキッチンを実現しています。
2階LDKがワンルームなのに対し、1階は回遊動線上に収納や水回りなどを連続して配置。行き止まりのない、機能美に満ちた空間です。
「廊下の壁面全体がクローゼットで着替えの場所を兼ねていたり、浴室の壁がなかったり。部屋の区切りがなく、使わない場所がないので、以前住んでいたマンションと広さはほぼ同じですが、圧倒的に広く感じます」(夫)
風通しもよく、夏も冬もエアコンをほとんど使わないとか。「2階にいても、『勉強に集中していないな』など、子どもの気配を感じます」と妻。仕切りのない、合理的で快適な住まいを楽しんでいるようです。
夕方からはテラスでビール。夏にはプール遊びも
あえて窓を横長にすることでテラスが舞台のように見え、開放感を強調。「開口部の高さに合わせてテラスの壁を立ち上げ、デッキチェアでくつろいでいても向かいの家の2階から見えない高さにしています」と設計を担当した石井秀樹さん。
オリジナルの木製サッシの高さは1m55㎝。テラスにかけた庇(ひさし)が直射光をさえぎり、冬は暖かい日差しが奥まで届きます。冬でも天気がいい日は窓を開けて過ごすそう。
子どもたちが畳やソファでゴロゴロしならがテレビを観たりして過ごすというリビング。階段上部の天窓を開けると、下からの風が抜けていきます。








