自然素材が彩る伝統的な木造建築にあこがれていたIさん。大喜工務店の建築現場で、良質な素材をふんだんに使い、妥協のない姿勢に感動。さっそく家づくりを依頼。この出会いが、求めていた木の香りと温もりに包まれる暮らしをかなえてくれました。
すべての画像を見る(全21枚)檜の香りに包まれ、断熱性にも優れた住み心地のよい家
玄関を入った瞬間、心地よい檜の香りに包まれるIさんの家。玄関ホールだけでなく奥に続くLDKにも、夫妻が好きだという無垢の檜材がふんだんに使われています。
さらに杉やタモ、サンゴ漆喰といった自然素材と、風通しのよい構造が相まって、空気清浄機の出番はなくなったそう。
天井高が2.9mもあるLDKは、見通しのよいシンプルな形状。奥の引き戸を開放すれば和室とつながります。ダイニングテーブル、テレビ台、飾り棚などもすべて檜製です。
「もともと別の工務店と契約直前だったのですが、建築中の大喜工務店さんの家を見る機会があり、基礎や骨組みのすごさに驚かされました。話を聞くと、8寸角以上の檜材を使う大黒柱をはじめ、家の要になる通し柱が太くて数も多く、塗り壁や無垢木材の建具などが標準仕様。それでいて割安な価格に衝撃を受け、頼み込んで建ててもらえることになりました」
そう振り返る夫は、各所に使う木材選びにあたり、大喜工務店の倉庫へ案内され、在庫の質と量にも驚いたそう。床材からカウンター材まで、何度も通ってお気に入りを探しました。なかでも「大きな地震がきても大丈夫」と話す自慢の逸品が、1尺1寸角の大黒柱と2階の丸太梁。家を力強く支え、美しい木肌がインテリアとしても映えます。
「木造建築の素晴らしさが感じられ、子どもたちも木が好きになりました」と妻。断熱性にも優れ、真冬の早朝に暖房がない状態でも外気温より明らかに暖かいとか。「それも細部まで外断熱がきっちり施工されているからこそ」と、住み心地のよさを実感しています。
●この家のプロフィール
- Iさんの家 三重県
家族構成:夫40代 妻40代 長女3歳 長男1歳
敷地面積:196.69㎡(59.60坪)
延床面積:131.66㎡(39.90坪)
設計・施工:大喜工務店
1階の和室は杉の赤身材を使った腰壁や天井で温かな雰囲気に。窓の上枠の檜を見せるためカーテンはやや下げて設置。
各所に美しさと強さを兼ね備えた、自然素材のこだわりが
ダイニング奥の窓辺に檜製の多目的カウンターと飾り棚を設置。壁は杉材で仕上げています。
既製品のシステムキッチンに檜材の幅広カウンターを組み合わせて使いやすくアレンジ。食器などを収める背面収納はタモ材でつくったオリジナルです。
玄関側の建具はガラスと木部を市松模様に組んだデザイン。「床の檜と階段の杉の色調を合わせたい」という夫のこだわりで、階段は下段の白系から徐々に赤みを増すよう材を組み合わせています。
天井、床、腰壁などに使った檜材の濃厚な香りが迎えてくれる玄関ホール。式台には節がはっきりした檜材を選んで変化を与えています。
ゲタ箱の湿気防止のために敷いているのは、大喜工務店が施工用に使う透湿防水シート。工務店への愛情があふれるIさんのアイデアです。
1尺1寸の大黒柱が、家族の安心を見守る
大喜工務店ではすべての柱に最高品質の国産檜を使い、大黒柱は8寸角以上を標準にしていますが、Iさんの家の大黒柱にはとくに太い1尺1寸(約33㎝)角を採用。見た目の美しさも意識して、夫が大喜工務店の倉庫で最良の1本をチョイスしました。
2階にある極太の丸太梁との組み合わせにより、大地震にも十分に耐えられる強い家を実現しています。
地棟と呼ばれる伝統的な日本建築の丸太梁には直径65㎝、重さ車1台分の国産松を使用。夜はスポットライトで照らされます。
フリースペースを併設することで空間的なゆとりが生まれた2階ホール。太い丸太梁を見渡せる階段踊り場付近からの眺めが夫のお気に入りです。
子ども部屋は4.5畳と小さめですが、勾配天井で広がりが感じられます。ここを含めて2階の各空間に通風用の小窓を設置しています。
寝室には真空管アンプやスピーカーを置くためのカウンターを造作。「天井の高い空間でゆったりと音楽を聴いていると幸せ」と夫。2階の床には節のない希少な杉の赤身材を使用しています。
2階ホールのフリースペースは子どもたちの勉強コーナーを想定し、奥行約50㎝の檜材カウンターを設置しています。
階段の踊り場に玄関の換気用ルーバーを設けました。玄関にこもりがちな夏の熱気は、ここを通って踊り場の上にある窓へ。
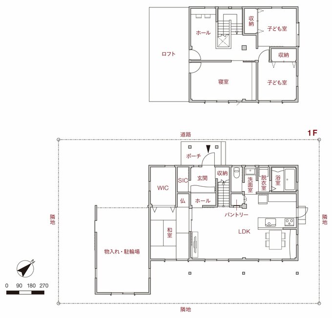
外観と間取り図
外観は片流れの大屋根がゆったりとした印象を与えます。開口部を広く設けた物入れ・駐輪場にも太い梁や柱を採用し、十分な強度を確保しました。
木製ルーバーで外から玄関内が見通せないように配慮。ポーチの柱には6寸角の檜、階段下や門柱は建物との調和を図るために枕木を採用。夜はライトアップで樹の影が映し出されます。
田園風景が広がる南東側にタイルデッキと小庭を配置。シートを敷いてランチをするなど、子どもたちと気軽にピクニック気分が味わえる妻のお気に入りスペースです。
工務店紹介:安心と快適を実現する、無添加骨太高断熱住宅
上質の檜材を産地から直接仕入れ、自社倉庫で長期自然乾燥させて大黒柱などに使用。3階建て基準のベタ基礎や2階にグランドピアノが置ける仕様が標準で、基準の1.7倍以上の耐震性能を実現。
外断熱工法を採用し、無垢材やサンゴ漆喰などを用いた「無添加骨太高断熱住宅」が自慢。徹底したこだわりを貫き、大手建築会社の幹部社員から家づくりを依頼されるほど高い評価を誇ります。
「東濃地方から檜の銘木を仕入れ、自社で長期自然乾燥しています」と、社長の藤田喜代次さん。
DATA
社名/大喜工務店
代表/藤田喜代次
住所/〒527-0087滋賀県東近江市平田町764
TEL 0748・22・0028
年間建築棟数/新築30棟
設立/1952年1月
建築エリア/滋賀県、京都府南部を中心に、遠方も応相談
設計担当/藤田英喜さん 住宅設計実績100軒以上の一級建築士。見た目のデザインだけでなく、生活スタイルに合わせて幅広く提案。同じく一級建築士の社長とともに、家づくりの全工程に携わっています。




















