品質の高い家を望む千葉在住の古谷さんが依頼したのは、滋賀の大喜工務店。対応圏外でも、建主の熱意とそれに応えたいと奮起した大喜工務店によって夢が実現!経緯などを伺いました。
すべての画像を見る(全20枚)天井の仕上げは2階の頑丈な根太剛床を見せた表しに。カバ材の無垢床やサンゴ漆喰の壁など、自然素材をふんだんに使用しています。
古谷さんの家(2021年) 千葉県 家族構成/夫40代 妻30代 母80代
設計・施工/大喜工務店
人情あふれる家づくりで、安心+快適な家を追求
結婚を機に「地震から妻や母の命が守れる家を建てたい」と願った古谷さん。情報収集の末、自然乾燥による檜材を使った頑丈な構造の木の家に決めたそうです。
「依頼先は関東に限らず東北、中部、近畿など広域を探し、群を抜いてよかったのが滋賀県にある大喜工務店さんでした」
良質な木材や高い設計力はもちろん、何よりも「構造に妥協しない」という姿勢にほれ込んだ古谷さんは、対応地域外と知りつつ、無理は承知で同社に直談判。熱意に打たれた社長が「なんとかしましょう」と引き受けてくれることに。以来、打ち合わせや材料選び、完成直前見学会などで何十回も滋賀を訪れたそうです。
上棟時には、古谷さんの選んだ大黒柱や地松の丸太梁などと一緒に、大工さんや屋根屋さんが滋賀からも集結。社長が様々なカウンター材をトラックに積み、「好みで選べるように」と滋賀から運んできたこともあったそうです。
小屋組みを表しにした夫妻の寝室は、高さが最大約5mの大空間。ドアの脇にある太い柱が大黒柱です。
夫妻の寝室は12.5畳あり、セカンドリビングを設けても余裕の広さ。
壁につくりつけた収納カウンターは、藤田社長が持参した材の中から選んだ野趣あふれる耳つきの無垢板です。
寝室の固定階段から出入りするロフト。
建物の端から端まで一直線に渡した太鼓梁は、長さ10m強もある逸品。10年以上自然乾燥させた岐阜の地松で、古谷さんが選んだもの。
頑丈な構造で守られていると、実感できます!
古谷邸は竣工から1年以上たちますが、中に入ると木の香りが。それは多くの無垢材が使われている証しです。
設計者の藤田英喜さんは、「2本の1尺角大黒柱と外周の10本の8寸角の通し柱で建物を支え、大黒柱を含む4本の通し柱に岐阜県産の地松丸太梁を通しで組み込んでいます」と話します。
暮らし始めて古谷さんは、「大黒柱や吹き抜けの木組みを見ては、諦めずに頼んでよかった」と納得の様子。妻も「家事動線がよくて快適」とうれしそうです。
そんなふたりを見ながら母は、「家のすべてが宝物」と目を細めます。
黒いサイディングがモダンな古谷邸。「外観から木の家だと分かるように」という藤田さんのアイデアで、木組みを生かしたデザインに。
照明付きのオーダー家具や壁面収納で、玄関はすっきりしています。
家具作家が製作した、美しい無垢の家具
つくりつけの食器棚は、カップ専用のオープン棚やマグネットが使えるホーローの壁など、妻仕様にデザインされたオーダー家具。
ダイニングテーブルは、木目が美しいブビンガの一枚板を使って製作された一点物です。
ローテーブルはダイニングテーブルと同じ木を分割して製作されたオリジナル。ソファもオーダーメイドで、ブラックウォールナットを用いています。奥に見える和室が母の部屋。
意匠にもこだわった母の部屋
柱を見せた真壁造りの母の部屋。
壁に取りつけた見事な細工の欄間は、大喜工務店が「しっくりなじむ家で使おう」と保管していた一点物です。
床柱は古谷さんが選び抜いたものです。
檜の一枚板のカウンターをはじめ、腰壁や陶製の手洗いボウルで和の風情を高めたトイレ。
雨天や花粉が飛ぶ時季は室内干しに」という妻の要望で、ランドリーには物干し竿を設置。洗濯動線も短く、家事がラクにこなせます。
洗面室と脱衣室を3枚の引き戸で仕切ることで、間口が広く、出入りがスムーズに。家族が入浴中も洗面台が使えて便利です。
Checkpoint
1尺の太い大黒柱が安心の象徴!
- 古谷邸のシンボルとなる2本の大黒柱は、いずれも太さが1尺もある立派な檜。良材の産地として有名な東濃地方から仕入れたもので、長期自然乾燥して強度を高めたのちに職人の技で加工されています。優れた耐震性、耐久性の実現に加え、肌触りやどっしりした存在感が暮らしの質を高めます。
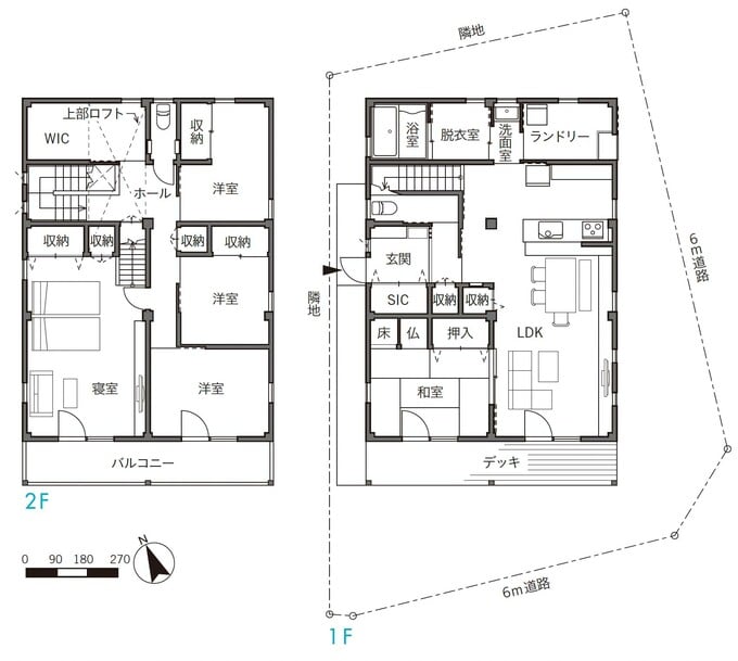
間取り図
Data
地面積/165.34㎡(50.10坪)
延床面積/145.74㎡(44.16坪)
1階/72.87㎡(22.08坪)
2階/72.87㎡(22.08坪)
用途地域/市街化調整区域
建ぺい率/70%
容積率/200%
構造/木造軸組工法
本体工事費/3500万円
竣工/2019年8月
設備
厨房機器/タカラスタンダード
衛生機器/TOTO
窓・サッシ/エクセルシャノン
工務店プロフィール
安心と快適を実現する無添加骨太高断熱住宅
上質の檜材を産地から直接仕入れ、自社倉庫で長期自然乾燥させて大黒柱などに使用。3階建て基準のベタ基礎や2階にグランドピアノが置ける仕様が標準で、基準の1.7倍以上の耐震性能を実現。外断熱工法も採用し、耐久性能も高めています。柱・梁・床・天井には無垢材を、壁にはサンゴ漆喰などを用いた「無添加骨太高断熱住宅」を推進しています。
過剰なほどのこだわりを貫き、大手建築会社の幹部社員から家づくりを依頼されるほど信頼は厚い会社です。
●社名/大喜工務店
●ひと言:本物にこだわった、耐久性の強い家をつくっています。
●建築エリア:滋賀県を中心に、遠方も要相談で対応
●住所/〒527-0087 滋賀県東近江市平田町764
●電話/0748・22・0028
●年間建築棟数/新築30棟
●設立/1952年1月
●代表/藤田喜代次
「東濃地方から檜の銘木を仕入れ、自社で長期自然乾燥しています」と、社長の藤田喜代次さん。
藤田英喜さんは、住宅設計実績100軒以上の一級建築士。同じく一級建築士の社長とともに、生活スタイルに合わせた幅広い提案を行っています。



















